For Sale By Auction | 10:00, 22 October 2025 | Lot 22

47 Cardiff Road, Norwich, Norfolk NR2 3HR

*Guide | £195,000 (plus fees)

  • Terraced House
  • 3 Bedrooms
  • Tenure: Freehold

Call the team on 01603 505 100 for more information

Auction Date

Wed 22/10/2025

Auction Time

10:00

Auction Venue

Livestream Auction

This three bedroom Victorian terrace offers an opportunity for refurbishment and improvement in the Golden Triangle.

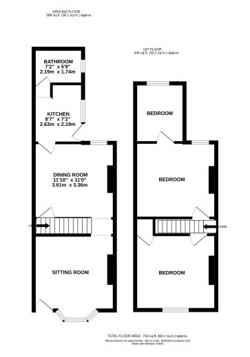
This three bedroom mid terrace house offers an exciting opportunity for refurbishment and improvement making it ideal for owner-occupiers, investors or builders seeking a project. The property has been tenanted for a number of years and has recently been vacated. The property comprises sitting room, dining room, kitchen and bathroom on the ground floor with three bedrooms ( 3rd bedroom off the second bedroom). Un-bisected rear garden. Properties in this area are extremely popular, just a short distance from both the University of East Anglia and, Norfolk and Norwich University Hospital and local amenities.

Tenure

Freehold

Ground floor

Sitting room, dining room, kitchen, bathroom.

First Floor

Two bedrooms off landing with bedroom three accessed off bedroom two.

Outside

Front garden and un-bisected raised rear garden.

Council Tax

Band B

Viewings

Viewings are being held by appointment only and the next are on : Friday 3rd October Wednesday 8th October Wednesday 15th October. Please contact the Norwich Office to book your appointment time

Energy Efficiency Rating (EPC)

Current Rating D

Services

Interested parties are requested to make their own enquiries to the relevant authorities as to the availability of services.

Local Authority

Norwich City Council

Solicitors

Nexa Law Limited, Ref: Patrick Mulcahy, Tel: 03300 242420 Ext. 2391

Important Notice to Prospective Buyers:

We draw your attention to the Special Conditions of Sale within the Legal Pack, referring to other charges in addition to the purchase price which may become payable. Such costs may include Search Fees, reimbursement of Sellers costs and Legal Fees, and Transfer Fees amongst others.

Additional Fees

Buyer's Premium - £600 inc VAT payable on exchange of contracts.

Administration Charge - £1200 inc VAT payable on exchange of contracts.

Disbursements - Please see the legal pack for any disbursements listed that may become payable by the purchaser on completion.

View Larger Map

Disclaimer: The map preview provided above is for general guidance only and may not accurately reflect the exact location or surrounding buildings. Prospective buyers and interested parties are strongly advised to independently verify the precise location and surroundings before bidding.