For Sale By Auction | 10:00, 22 October 2025 | Lot 80

12 Broomspath Road, Stowupland, Stowmarket, Suffolk IP14 4DB

*Guide | £200,000 - £220,000 (plus fees)

  • Semi-Detached House
  • 3 Bedrooms
  • Tenure: Freehold

Call the team on 01473 558 888 for more information

Auction Date

Wed 22/10/2025

Auction Time

10:00

Auction Venue

Livestream Auction

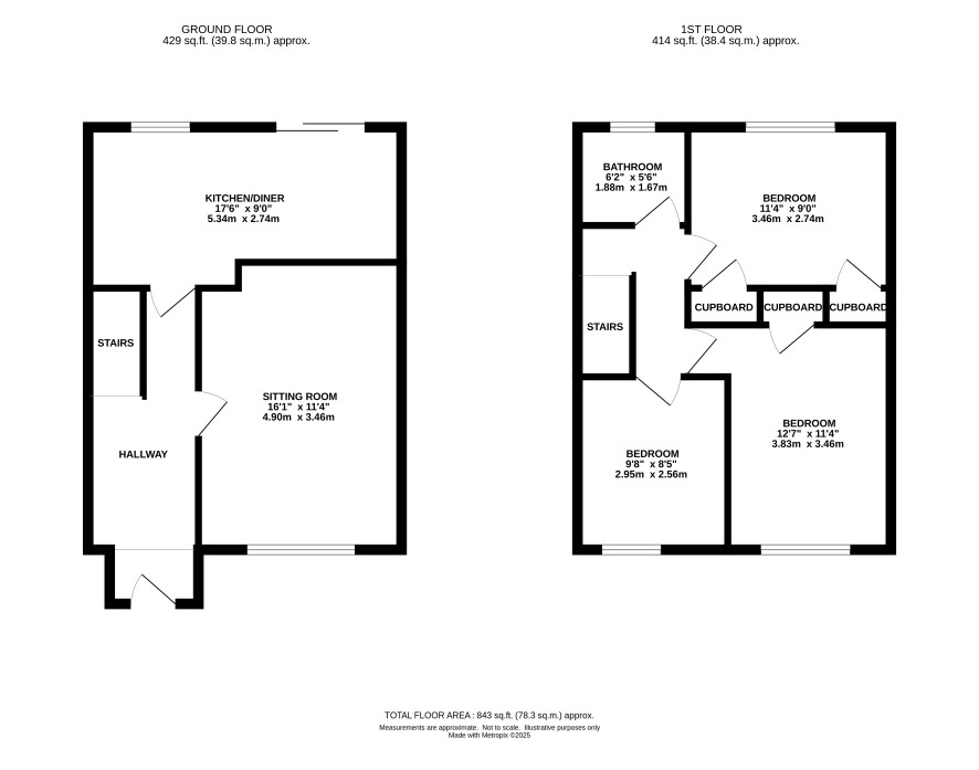
An immaculate semi-detached house in a cul-de-sac location

Situated in a desirable residential area within walking distance of the station is this bright and airy semi-detached house presented in turn key condition. The property offers three bedroom accommodation including a new kitchen, double glazing, central heating, off road parking, gardens and will provide comfortable living for any family. Priced competitively for the auction market we're anticipating a good level of interest from investors and owner occupiers alike.

Tenure

Freehold

Council Tax Band

C

Energy Efficiency Rating (EPC)

Current Rating D

Services

Interested parties are requested to make their own enquiries to the relevant authorities as to the availability of services.

Local Authority

Mid Suffolk District Council

Solicitors

Barker Gotelee, Ref: Nicola Cawthorne, Tel: 01473 617335

Important Notice to Prospective Buyers:

We draw your attention to the Special Conditions of Sale within the Legal Pack, referring to other charges in addition to the purchase price which may become payable. Such costs may include Search Fees, reimbursement of Sellers costs and Legal Fees, and Transfer Fees amongst others.

Additional Fees

Buyer's Premium - £1200 inc VAT payable on exchange of contracts.

Administration Charge - £1200 inc VAT payable on exchange of contracts.

Disbursements - Please see the legal pack for any disbursements listed that may become payable by the purchaser on completion.

View Larger Map

Disclaimer: The map preview provided above is for general guidance only and may not accurately reflect the exact location or surrounding buildings. Prospective buyers and interested parties are strongly advised to independently verify the precise location and surroundings before bidding.