For Sale By Auction | 10:00, 10 December 2025

20 Carr Street, Ipswich, Suffolk IP4 1EJ

*Guide | £130,000 - £150,000 (plus fees)

  • Retail Property (high street)
  • Tenure: Freehold

Call the team on 01473 558 888 for more information

Auction Date

Wed 10/12/2025

Auction Time

10:00

Auction Venue

Livestream Auction

A substantial town centre retail premises suited to a variety of trades.

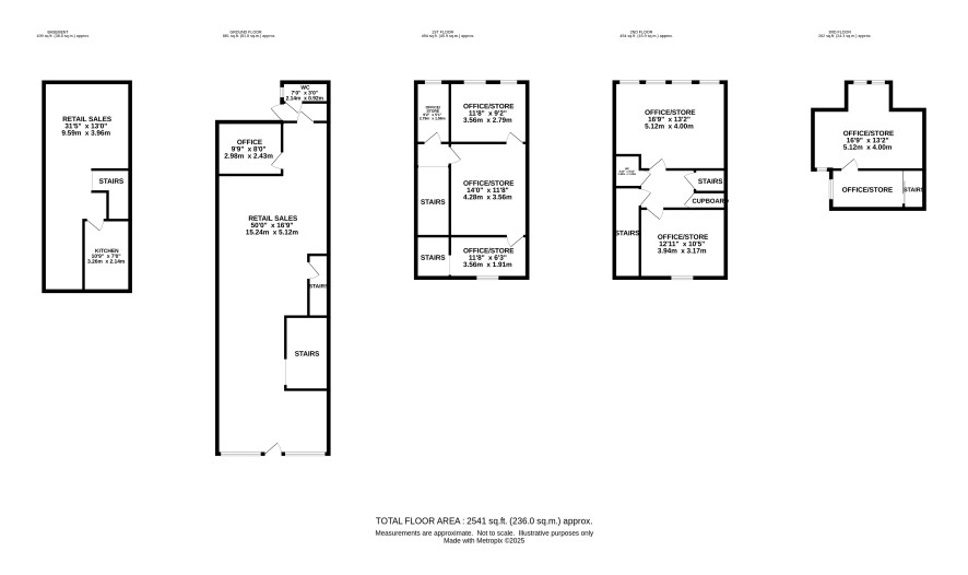
Situated in one of the town's main shopping streets is this most attractive premises configured over five floors including a basement and extending to over 2,500 sq ft. The property is currently let to The Samaritans but the break clause within their lease has been exercised and will be vacating in November 2025. Offering great potential for an existing or start up business we believe this is an opportunity not to be missed.

Tenure

Freehold

Energy Efficiency Rating (EPC)

Current Rating Please refer to Legal Pack

Services

Interested parties are requested to make their own enquiries to the relevant authorities as to the availability of services.

Local Authority

Ipswich Borough Council

Solicitors

Spencer West LLP, Ref: Emma Barnard, Tel: 07468 878012

Important Notice to Prospective Buyers:

We draw your attention to the Special Conditions of Sale within the Legal Pack, referring to other charges in addition to the purchase price which may become payable. Such costs may include Search Fees, reimbursement of Sellers costs and Legal Fees, and Transfer Fees amongst others.

Additional Fees

Buyer's Premium - £1500 inc VAT payable on exchange of contracts.

Administration Charge - £1200 inc VAT payable on exchange of contracts.

Disbursements - Please see the legal pack for any disbursements listed that may become payable by the purchaser on completion.

View Larger Map

Disclaimer: The map preview provided above is for general guidance only and may not accurately reflect the exact location or surrounding buildings. Prospective buyers and interested parties are strongly advised to independently verify the precise location and surroundings before bidding.