For Sale By Auction | 10:00, 10 December 2025

Land to the rear, 84 Upwell Road, March, Cambridgeshire PE15 0DA

*Guide | £30,000 - £40,000 (plus fees)

  • Residential Development
  • Tenure: Freehold

Call the team on 01733 889833 for more information

Auction Date

Wed 10/12/2025

Auction Time

10:00

Auction Venue

Livestream Auction

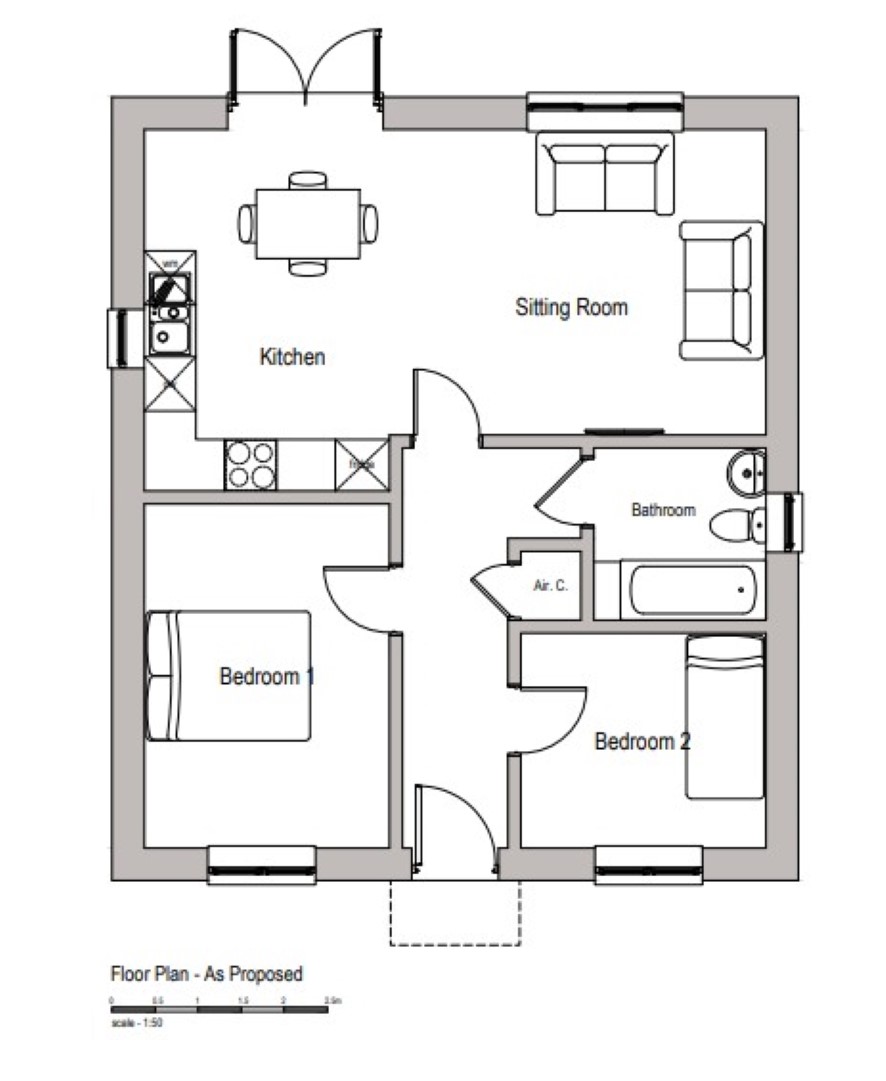
A building plot with planning permission to build a detached two bedroom bungalow situated just off Upwell Road.

A building plot with planning permission to erect a detached bungalow Fenland District Council ref F/YR24/0845/FDC. The property has planning for two bedroom, lounge/kitchen, and a bathroom. March offers a variety of shops and recreational facilities and a rail link into Peterborough Ely and Cambridge.

Tenure

Freehold

Proposed accommodation

Hall, lounge/kitchen, two bedrooms and a bathroom.

Services

Interested parties are requested to make their own enquiries to the relevant authorities as to the availability of services.

Local Authority

Fenland District Council

Solicitors

Bowsers, Ref: David Groome, Tel: 01945 583194

Important Notice to Prospective Buyers:

We draw your attention to the Special Conditions of Sale within the Legal Pack, referring to other charges in addition to the purchase price which may become payable. Such costs may include Search Fees, reimbursement of Sellers costs and Legal Fees, and Transfer Fees amongst others.

Additional Fees

Buyer's Premium - £1500 inc VAT payable on exchange of contracts.

Administration Charge - £1200 inc VAT payable on exchange of contracts.

Disbursements - Please see the legal pack for any disbursements listed that may become payable by the purchaser on completion.

View Larger Map

Disclaimer: The map preview provided above is for general guidance only and may not accurately reflect the exact location or surrounding buildings. Prospective buyers and interested parties are strongly advised to independently verify the precise location and surroundings before bidding.