For Sale By Auction | 10:00, 10 December 2025 | Lot 25

2 The Street, Earsham, Bungay, Norfolk NR35 2TZ

Sold £193,000

  • Semi-Detached House
  • 3 Bedrooms
  • Tenure: Freehold

Call the team on 01603 505 100 for more information

Auction Date

Wed 10/12/2025

Auction Time

10:00

Auction Venue

Livestream Auction

A vacant three bedroom semi detached house in need of refurbishment

This ex-local authority semi detached house is now vacant and ready for a program of updating and refurbishment. The property has oil-fired central heating, sealed unit double glazing and a large garden with ample off road parking to the front. The house is an ideal project for owner-occupiers, builders, or investors. Earsham is located close to the market town of Bungay where a wide range of shops, schools and other useful amenities can be found.

Tenure

Freehold

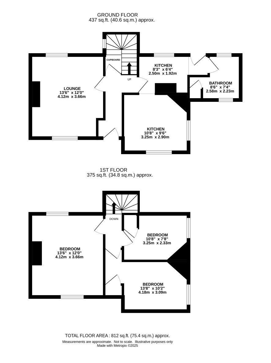
Ground Floor

Hallway, lounge, kitchen, utility room, bathroom

First Floor

Landing, three bedrooms

Outside

Large front and rear garden, ample off road parking

Council Tax Band

B

Viewings

Open viewings are arranged and the next are on Tuesday 25 November. To book the next available appointment please call the Norwich office.

Energy Efficiency Rating (EPC)

Current Rating F

Services

Interested parties are requested to make their own enquiries to the relevant authorities as to the availability of services.

Local Authority

South Norfolk Council

Solicitors

Howes Percival (Norwich), Ref: Sally Rackham, Tel: 01603 284250

Important Notice to Prospective Buyers:

We draw your attention to the Special Conditions of Sale within the Legal Pack, referring to other charges in addition to the purchase price which may become payable. Such costs may include Search Fees, reimbursement of Sellers costs and Legal Fees, and Transfer Fees amongst others.

Additional Fees

Buyer's Premium - £900 inc VAT payable on exchange of contracts.

Administration Charge - £1200 inc VAT payable on exchange of contracts.

Disbursements - Please see the legal pack for any disbursements listed that may become payable by the purchaser on completion.

View Larger Map

Disclaimer: The map preview provided above is for general guidance only and may not accurately reflect the exact location or surrounding buildings. Prospective buyers and interested parties are strongly advised to independently verify the precise location and surroundings before bidding.