For Sale By Auction | 10:00, 10 December 2025 | Lot 97

The Chimes, Bells Hill Road, Vange, Basildon, Essex SS16 5JR

Sold After

  • Semi-Detached House
  • 4 Bedrooms
  • Tenure: Freehold

Call the team on 01702 939933 for more information

Auction Date

Wed 10/12/2025

Auction Time

10:00

Auction Venue

Livestream Auction

Viewing Times:

Fri 14 Nov

11:00-11:30

Freehold Vacant Four Bedroom Semi-Detached Chalet requiring some improvement

A vacant four bedroom semi-detached chalet with excellent renovation potential, arranged over two floors, allowing refurbishment and reconfiguration (subject to all necessary consents.) The property sits on a good sized plot and backs onto open land. Bells Hill Road is a popular location.

Tenure

Freehold

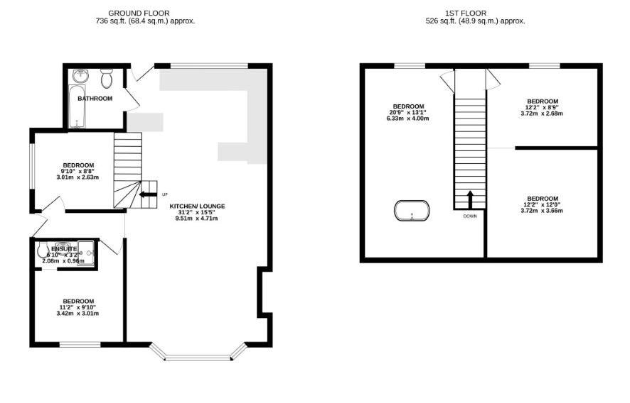
Ground floor

Open Plan Living/Kitchen/Dining 31'2" x 15'5" Family bathroom: 6'4" x 6'11" Bedroom 4: 9'10" x 8'8" Bedroom: 11'2" x 9'10"

First Floor

Bedroom 1: 20'9" x 13'1" Bedroom2: 12'2" x 8'9" Bedroom 3: 12'2" x 12'0"

Exterior

Private driveway providing off-street parking Attached garage. Good size rear garden.

Council Tax Band

C

Energy Efficiency Rating (EPC)

Current Rating D

Services

Interested parties are requested to make their own enquiries to the relevant authorities as to the availability of services.

Local Authority

Basildon District Council

Solicitors

TLT LLP, 1 Redcliff Street, Ref: TLT LLP, Tel: 03301654119

Important Notice to Prospective Buyers:

We draw your attention to the Special Conditions of Sale within the Legal Pack, referring to other charges in addition to the purchase price which may become payable. Such costs may include Search Fees, reimbursement of Sellers costs and Legal Fees, and Transfer Fees amongst others.

Additional Fees

Buyer's Premium - £1560 inc VAT payable on exchange of contracts.

Administration Charge - £1200 inc VAT payable on exchange of contracts.

Disbursements - Please see the legal pack for any disbursements listed that may become payable by the purchaser on completion.

View Larger Map

Disclaimer: The map preview provided above is for general guidance only and may not accurately reflect the exact location or surrounding buildings. Prospective buyers and interested parties are strongly advised to independently verify the precise location and surroundings before bidding.