For Sale By Auction | 10:00, 10 December 2025 | Lot 110

7 Priory Plain, Great Yarmouth, Norfolk NR30 1NG

Sold £110,000

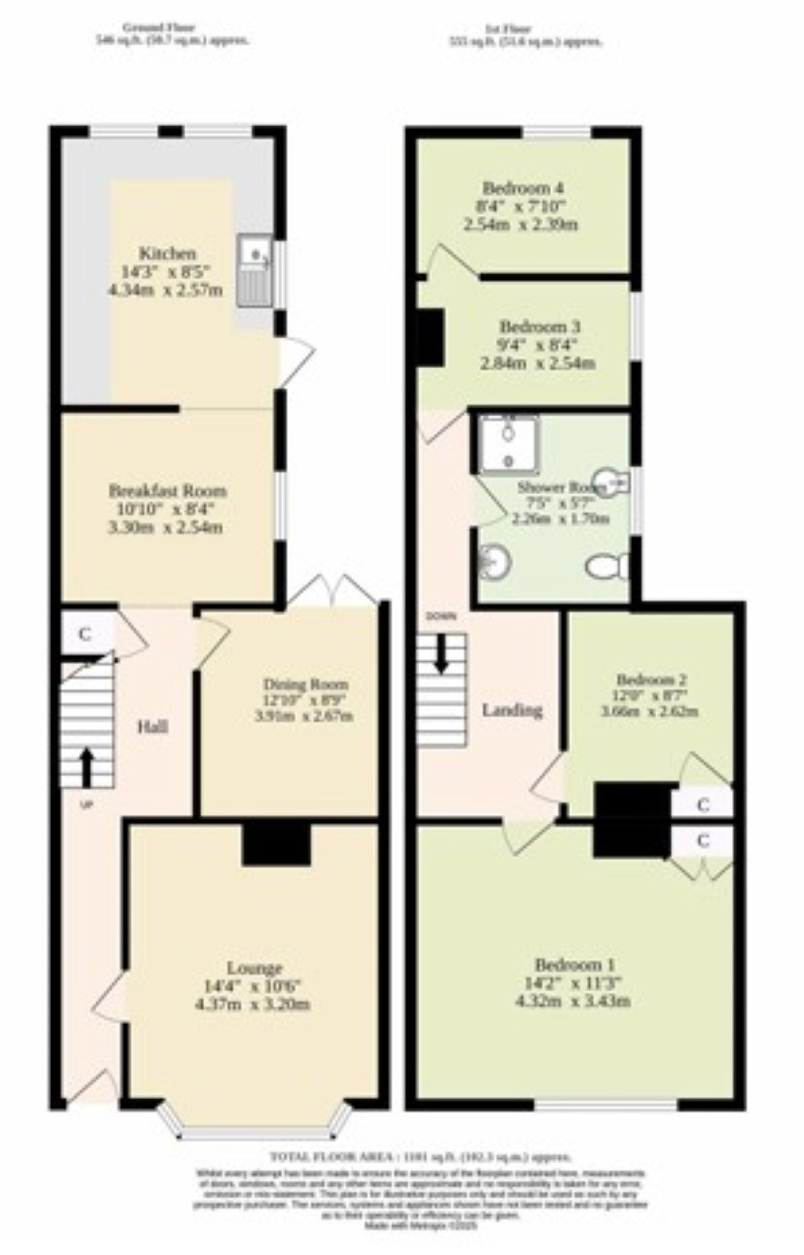
  • Terraced House
  • 4 Bedrooms
  • Tenure: Freehold

Call the team on 01603 505 100 for more information

Auction Date

Wed 10/12/2025

Auction Time

10:00

Auction Venue

Livestream Auction

Hall entrance four bedroom period terrace house requiring renovation and repair located in the centre of the popular seaside resort of Great Yarmouth.

The spacious property has three reception rooms and kitchen on the ground floor with four bedrooms and shower room above offering significant accommodation and flexible layout. The period character of the property is still evident and original features can be found throughout and it now requires renovation and repair to restore and enhance. There is also a courtyard garden accessed from the kitchen that provides useful outdoor space. Centrally located within the heart of the town it offers significant opportunity for renovation and investment.

Tenure

Freehold

Viewings

By appointment only. The next viewings are being held on Wednesday 26 November and Friday 5 December. Please call the Norwich office to book an appointment.

Energy Efficiency Rating (EPC)

Current Rating E

Services

Interested parties are requested to make their own enquiries to the relevant authorities as to the availability of services.

Local Authority

Great Yarmouth Borough Council

Solicitors

Spire Solicitors LLP (Norwich), Ref: Tracy Guest, Tel: 01603 886221

Important Notice to Prospective Buyers:

We draw your attention to the Special Conditions of Sale within the Legal Pack, referring to other charges in addition to the purchase price which may become payable. Such costs may include Search Fees, reimbursement of Sellers costs and Legal Fees, and Transfer Fees amongst others.

Additional Fees

Buyer's Premium - £960 inc VAT payable on exchange of contracts.

Administration Charge - £1200 inc VAT payable on exchange of contracts.

Disbursements - Please see the legal pack for any disbursements listed that may become payable by the purchaser on completion.

View Larger Map

Disclaimer: The map preview provided above is for general guidance only and may not accurately reflect the exact location or surrounding buildings. Prospective buyers and interested parties are strongly advised to independently verify the precise location and surroundings before bidding.