For Sale By Auction | 10:00, 10 December 2025 | Lot 32

Flint House, High Street, Stalham, Norwich, Norfolk NR12 9AS

Sold £275,000

  • Detached House
  • 4 Bedrooms
  • Tenure: Freehold

Call the team on 01603 505 100 for more information

Auction Date

Wed 10/12/2025

Auction Time

10:00

Auction Venue

Livestream Auction

A newly built four bedroom detached house tucked away off Stalham High Street

This impressive detached house was originally built in 2024 to a high standard of finish throughout to include air source heating, fitted kitchen with built in appliances and full sealed unit double glazing. There is a master bedroom with ensuite shower room, three further bedrooms and a family bathroom. In addition to a carport there is further allocated parking and a surprisingly private and secluded rear garden. Being located just off the High Street the property is excellently situated close to shops, other useful community facilities and schools. Stalham is also on the network of Broadland waterways and near to the North Norfolk Coast.

Tenure

Freehold

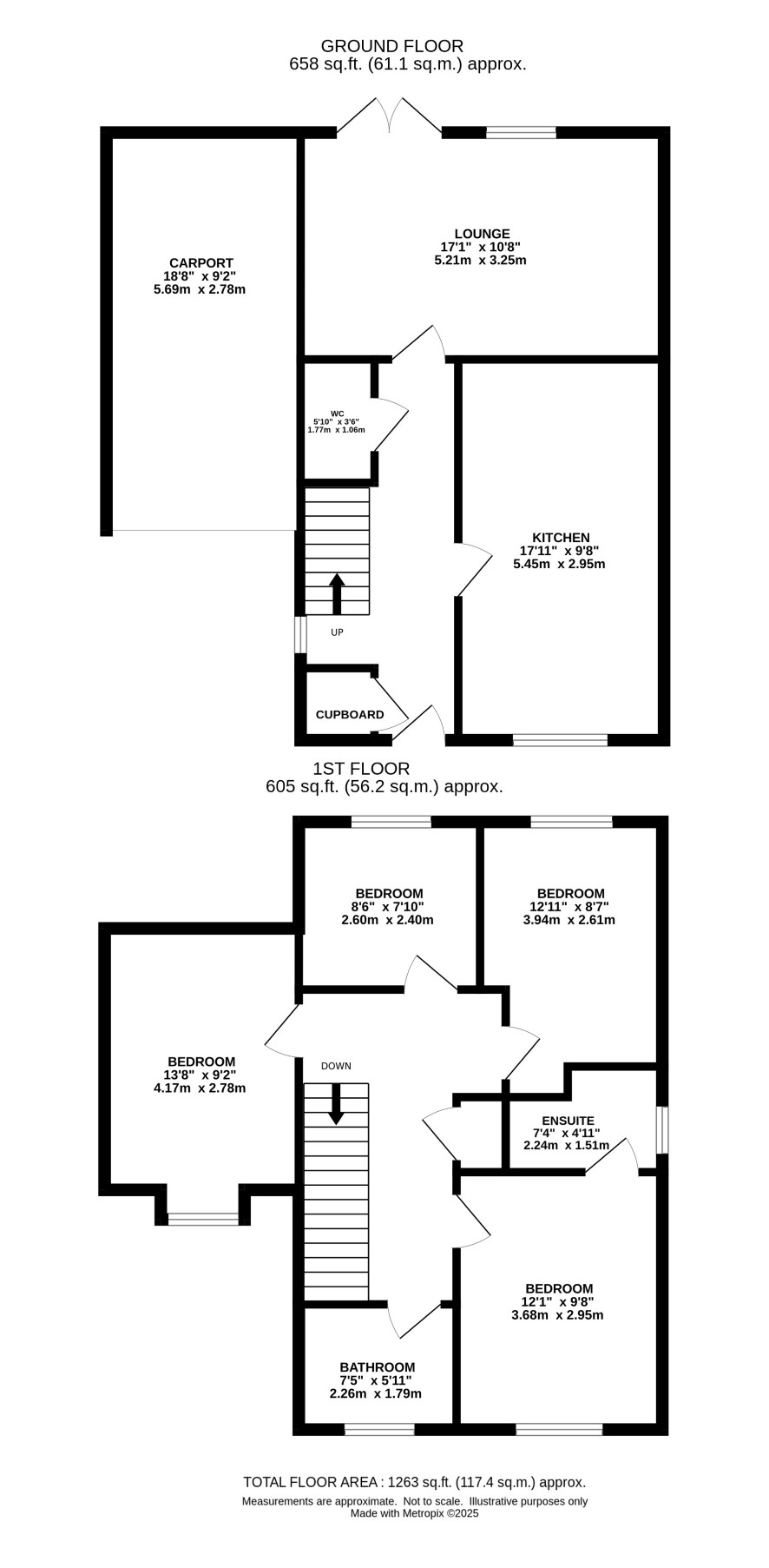
Ground Floor

Hall, cloakroom, kitchen/diner, lounge.

First Floor

Landing, master bedroom with ensuite shower room, three further bedrooms, family bathroom.

Outside

To the front of the property is a shingled parking area, this provides access to the carport. There is a further garage that can be purchased for £5,000 currently accessed off the shared driveway. To the rear is a sheltered landscaped garden with rear pedestrian access.

Council Tax Band

C

Viewings

Viewings are available by appointment only. To book a viewing please call the Norwich office.

Energy Efficiency Rating (EPC)

Current Rating C

Services

Interested parties are requested to make their own enquiries to the relevant authorities as to the availability of services.

Local Authority

North Norfolk District Council

Solicitors

Ashtons Legal (Norwich), Ref: Simon Parker, Tel: 01603 703070

Important Notice to Prospective Buyers:

We draw your attention to the Special Conditions of Sale within the Legal Pack, referring to other charges in addition to the purchase price which may become payable. Such costs may include Search Fees, reimbursement of Sellers costs and Legal Fees, and Transfer Fees amongst others.

Additional Fees

Buyer's Premium - £600 inc VAT payable on exchange of contracts.

Administration Charge - £1200 inc VAT payable on exchange of contracts.

Disbursements - Please see the legal pack for any disbursements listed that may become payable by the purchaser on completion.

View Larger Map

Disclaimer: The map preview provided above is for general guidance only and may not accurately reflect the exact location or surrounding buildings. Prospective buyers and interested parties are strongly advised to independently verify the precise location and surroundings before bidding.