For Sale By Auction | 10:00, 10 December 2025 | Lot 46

45 Popes Lane, Terrington St. Clement, King's Lynn, Norfolk PE34 4NT

Sold £170,000

  • Semi-Detached House
  • 3 Bedrooms
  • Tenure: Freehold

Call the team on 01553 777 773 for more information

Auction Date

Wed 10/12/2025

Auction Time

10:00

Auction Venue

Livestream Auction

A three bedroom semi detached house set within 0.26 of an acre - ideal for a builder/developer

This three bedroom semi detached house is in need of modernisation and ideal for extension subject to planning permission. The property is set in 0.26 (stms) of an acre and offers two reception rooms, kitchen, w.c with three bedrooms and a bathroom on the first floor. Outside provides parking to front, a carport, timber garage and gardens, total plot 0.26 of an acre (stms). Terrington St Clement provides local shops and two schools with more extensive facilities and a rail link into London Kings Cross at Kings Lynn.

Tenure

Freehold

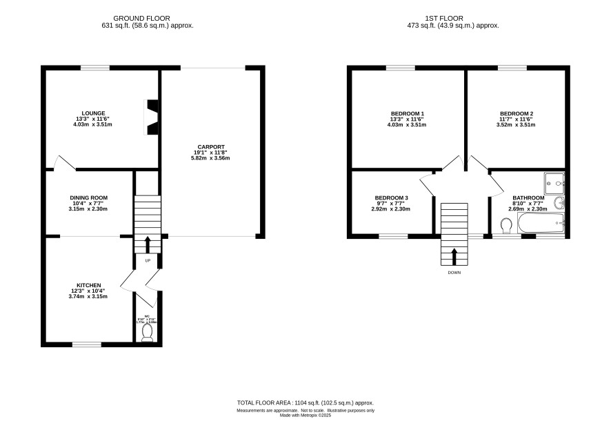
Ground Floor

Hall, w.c., kitchen, dining room, lounge.

First Floor

Landing, three bedrooms, bathroom with a separate shower cubicle.

Outside.

Total plot 0.26 of an acre (stms). Parking, carport, garage and gardens to rear.

Council Tax Band

B

Energy Efficiency Rating (EPC)

Current Rating Please refer to Legal Pack

Services

Interested parties are requested to make their own enquiries to the relevant authorities as to the availability of services.

Local Authority

Kings Lynn and West Norfolk Borough Council

Solicitors

Ward Gethin Archer (Kings Lynn - Regis Place), 3 Regis Place, Ref: Beth Buendia, Tel: 01553 660 033

Important Notice to Prospective Buyers:

We draw your attention to the Special Conditions of Sale within the Legal Pack, referring to other charges in addition to the purchase price which may become payable. Such costs may include Search Fees, reimbursement of Sellers costs and Legal Fees, and Transfer Fees amongst others.

Additional Fees

Buyer's Premium - £1200 inc VAT payable on exchange of contracts.

Administration Charge - £1200 inc VAT payable on exchange of contracts.

Disbursements - Please see the legal pack for any disbursements listed that may become payable by the purchaser on completion.

View Larger Map

Disclaimer: The map preview provided above is for general guidance only and may not accurately reflect the exact location or surrounding buildings. Prospective buyers and interested parties are strongly advised to independently verify the precise location and surroundings before bidding.