For Sale By Auction | 10:00, 10 December 2025 | Lot 11

166 Sprowston Road, Norwich, Norfolk NR3 4JA

*Guide | £130,000 - £150,000 (plus fees)

  • Terraced House
  • 2 Bedrooms
  • Tenure: Freehold

Call the team on 01603 505 100 for more information

Auction Date

Wed 10/12/2025

Auction Time

10:00

Auction Venue

Livestream Auction

Well presented two bedroom terrace house

Located in a highly convenient position on Sprowston Road to the North of Norwich and well placed for access to schools, shops and public transport. This two bedroom terrace house has been tenanted for many years but is now vacant. The property has been decorated throughout and benefits from a modern kitchen and bathroom and a bisected rear garden. Ideal for both owner occupiers and investors.

Tenure

Freehold

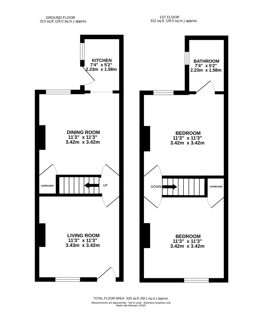
Ground Floor

Sitting room, dining room, kitchen

First floor

Two bedrooms with bathroom off bedroom 1

Outside

Long bisected rear garden.

Viewings

Viewings are currently being arranged for Thursday 4th November 2025. Please call Norwich office to book your appointment

Council Tax Band

A

Energy Efficiency Rating (EPC)

Current Rating E

Services

Interested parties are requested to make their own enquiries to the relevant authorities as to the availability of services.

Local Authority

Norwich City Council

Solicitors

Leathes Prior (The Close), Ref: Rachael Hughes, Tel: 01603 281004

Important Notice to Prospective Buyers:

We draw your attention to the Special Conditions of Sale within the Legal Pack, referring to other charges in addition to the purchase price which may become payable. Such costs may include Search Fees, reimbursement of Sellers costs and Legal Fees, and Transfer Fees amongst others.

Additional Fees

Buyer's Premium - £600 inc VAT payable on exchange of contracts.

Administration Charge - £1200 inc VAT payable on exchange of contracts.

Disbursements - Please see the legal pack for any disbursements listed that may become payable by the purchaser on completion.

View Larger Map

Disclaimer: The map preview provided above is for general guidance only and may not accurately reflect the exact location or surrounding buildings. Prospective buyers and interested parties are strongly advised to independently verify the precise location and surroundings before bidding.