For Sale By Auction | 10:00, 10 December 2025 | Lot 68

2, Old Park Farm, Park Road, Letheringham, Suffolk IP13 0LZ

*Guide | £180,000 - £195,000 (plus fees)

  • End of Terrace House
  • 2 Bedrooms
  • Tenure: Freehold

Call the team on 01473 558 888 for more information

Auction Date

Wed 10/12/2025

Auction Time

10:00

Auction Venue

Livestream Auction

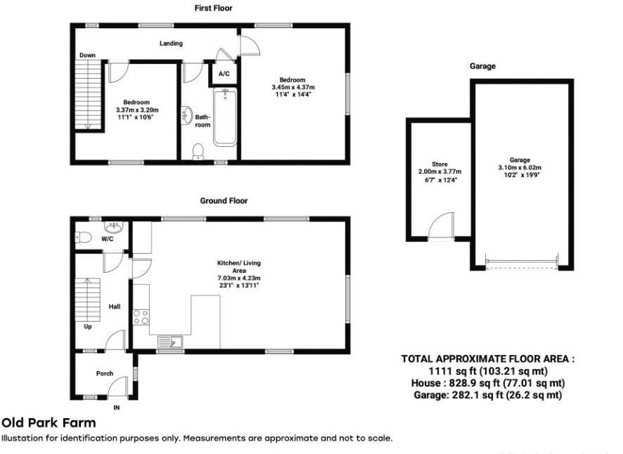
A fully refurbished end terraced house in a wonderful rural location

If it's peace and quiet in the Suffolk countryside you're looking for then look no further! Situated just a mile from Wickham Market and some 5 miles from Woodbridge and Framlingham respectively is this fully refurbished end-terraced house which is on the market for the first time since the 1950s. The two bedroom accommodation offers an open plan living room/kitchen, cloakroom, two bedrooms and a bathroom along with a garage, store and gardens. The property is air conditioned and would make a perfect forever home, Airbnb or holiday let.

Tenure

Freehold

Council Tax Band

B

Energy Efficiency Rating (EPC)

Current Rating D

Services

Interested parties are requested to make their own enquiries to the relevant authorities as to the availability of services.

Local Authority

East Suffolk Council

Solicitors

Fairweather Law (Framlingham), Ref: Jasmine Pringle, Tel: 01728 724737

Important Notice to Prospective Buyers:

We draw your attention to the Special Conditions of Sale within the Legal Pack, referring to other charges in addition to the purchase price which may become payable. Such costs may include Search Fees, reimbursement of Sellers costs and Legal Fees, and Transfer Fees amongst others.

Additional Fees

Buyer's Premium - £1200 inc VAT payable on exchange of contracts.

Administration Charge - £1200 inc VAT payable on exchange of contracts.

Disbursements - Please see the legal pack for any disbursements listed that may become payable by the purchaser on completion.

View Larger Map

Disclaimer: The map preview provided above is for general guidance only and may not accurately reflect the exact location or surrounding buildings. Prospective buyers and interested parties are strongly advised to independently verify the precise location and surroundings before bidding.