For Sale By Auction | 10:00, 10 December 2025 | Lot 50

Snettisham Water Mill, Mill Gardens, Snettisham, Norfolk PE31 7FH

*Guide | £295,000 (plus fees)

  • Detached House
  • 3 Bedrooms
  • Tenure: Freehold

Call the team on 01553 777 773 for more information

Auction Date

Wed 10/12/2025

Auction Time

10:00

Auction Venue

Livestream Auction

A detached Grade II listed three bedroom Water Mill successfully used as a holiday let providing an annual income of £35,628

A Grade II listed former water mill currently used as a holiday let providing an income of £35,628 including three bedrooms, one with en-suite, and a bathroom on the ground floor. An open plan living room kitchen is located on the first floor. Outside provides gardens, the mill pond and the former mill. Total plot is 0.74 of an acre (stms) including part of the mill pond. Snettisham is located North of Kings Lynn and offers local facilities. A main line rail link can be found at Kings Lynn. Note. The owners are responsible for managing the water level and the mill pond. There is a public footpath to the front of the property. The property cannot be occupied as a main residence.

Tenure

Freehold

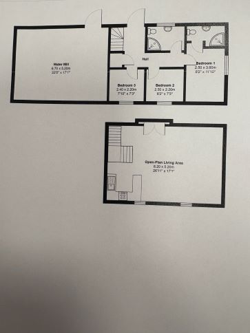
Ground floor

Hall, master bedroom, ensuite, two further bedrooms and a bathroom.

First Floor

Open plan living room/kitchen.

Outside

Gardens and mill pond 0.74 of an acre (stms)

Services

Interested parties are requested to make their own enquiries to the relevant authorities as to the availability of services.

Local Authority

Kings Lynn and West Norfolk Borough Council

Solicitors

Chattertons (Stamford), Ref: Jonathan Blythe

Important Notice to Prospective Buyers:

We draw your attention to the Special Conditions of Sale within the Legal Pack, referring to other charges in addition to the purchase price which may become payable. Such costs may include Search Fees, reimbursement of Sellers costs and Legal Fees, and Transfer Fees amongst others.

Additional Fees

Buyer's Premium - £1200 inc VAT payable on exchange of contracts.

Administration Charge - £1200 inc VAT payable on exchange of contracts.

Disbursements - Please see the legal pack for any disbursements listed that may become payable by the purchaser on completion.

View Larger Map

Disclaimer: The map preview provided above is for general guidance only and may not accurately reflect the exact location or surrounding buildings. Prospective buyers and interested parties are strongly advised to independently verify the precise location and surroundings before bidding.