For Sale By Auction | 10:00, 10 December 2025 | Lot 103

3 Bevan Street East, Lowestoft, Suffolk NR32 2AA

Sold £141,000

  • Mixed Use
  • 1 Bedroom
  • Tenure: Freehold

Call the team on 01603 505 100 for more information

Auction Date

Wed 10/12/2025

Auction Time

10:00

Auction Venue

Livestream Auction

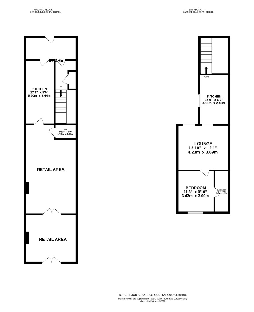
Mixed use investment opportunity situated close to Lowestoft town centre. Ground floor shop with self-contained flat above both currently Let producing £1,600 pcm (£19,200 pa)

A well-located mixed-use property comprising a ground floor retail unit with a separate one-bedroom flat above, situated close to the town centre and local amenities. Both spaces are currently Let to the same tenant and are producing £1,600 pcm (£19,200 pa) The ground floor shop is operating as a nail bar and the flat above has separate access via an entrance to the rear. Both spaces underwent refurbishment four years ago and are in good order throughout and present a strong ready made investment.

Tenure

Freehold

Business Rates

According to the Valuation Office website the Shop and Premises have a current rateable value of £6,300 with effect from 1 April 2023.

Council Tax Band

A

Energy Efficiency Rating (EPC)

Current Rating C, C

Services

Interested parties are requested to make their own enquiries to the relevant authorities as to the availability of services.

Local Authority

East Suffolk Council

Solicitors

Rita Pubco Ltd, Ref: Daniel Ingle, Tel: 07910113795

Important Notice to Prospective Buyers:

We draw your attention to the Special Conditions of Sale within the Legal Pack, referring to other charges in addition to the purchase price which may become payable. Such costs may include Search Fees, reimbursement of Sellers costs and Legal Fees, and Transfer Fees amongst others.

Additional Fees

Buyer's Premium - £960 inc VAT payable on exchange of contracts.

Administration Charge - £1200 inc VAT payable on exchange of contracts.

Disbursements - Please see the legal pack for any disbursements listed that may become payable by the purchaser on completion.

View Larger Map

Disclaimer: The map preview provided above is for general guidance only and may not accurately reflect the exact location or surrounding buildings. Prospective buyers and interested parties are strongly advised to independently verify the precise location and surroundings before bidding.