For Sale By Auction | 10:00, 10 December 2025 | Lot 52a

Greenside, Langrick Road, Hubberts Bridge, Boston PE20 3SG

Sold £150,000

  • Detached House
  • 3 Bedrooms
  • Tenure: Freehold

Call the team on 01733 889833 for more information

Auction Date

Wed 10/12/2025

Auction Time

10:00

Auction Venue

Livestream Auction

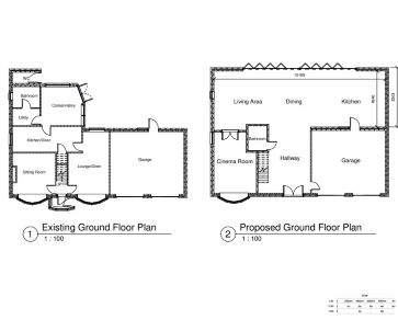
A detached three bedroom house in need of completing ideal for a builder investor with planning for a ground floor extension.

This three bedroom detached house was in the midst of a refurb by the previous owner with planning for a ground floor extension at the rear planning number B/22/0200 Boston District Council. The extension has been started but needs completing at the rear and the ground floor accommodation needs finishing with no kitchen. On the first floor there are three bedrooms and a shower room. Outside the property is set in a good sized plot with a large double garage. The village offers a railway station with links to Nottingham, Boston and Skegness. The Wheatsheaf PH is located in the village. More extensive facilities can be found at Boston.

Tenure

Freehold

Ground floor

Living room, kitchen area, lounge and a conservatory.

First Floor

Landing, three bedrooms and a shower room.

Outside

Drive, gardens and a double garage.

Council Tax Band

C

Energy Efficiency Rating (EPC)

Current Rating F

Services

Interested parties are requested to make their own enquiries to the relevant authorities as to the availability of services.

Local Authority

Boston Borough Council

Solicitors

TLT LLP, 1 Redcliff Street, Ref: TLT LLP, Tel: 03301654119

Important Notice to Prospective Buyers:

We draw your attention to the Special Conditions of Sale within the Legal Pack, referring to other charges in addition to the purchase price which may become payable. Such costs may include Search Fees, reimbursement of Sellers costs and Legal Fees, and Transfer Fees amongst others.

Additional Fees

Buyer's Premium - £1560 inc VAT payable on exchange of contracts.

Administration Charge - £1200 inc VAT payable on exchange of contracts.

Disbursements - Please see the legal pack for any disbursements listed that may become payable by the purchaser on completion.

View Larger Map

Disclaimer: The map preview provided above is for general guidance only and may not accurately reflect the exact location or surrounding buildings. Prospective buyers and interested parties are strongly advised to independently verify the precise location and surroundings before bidding.