For Sale By Auction | 10:00, 11 February 2026 | Lot 60

Beeston, Swanton Avenue, Dereham, Norfolk NR19 2HJ

*Guide | £120,000 - £140,000 (plus fees)

  • Terraced House
  • 2 Bedrooms
  • Tenure: Freehold

Call the team on 01603 505 100 for more information

Auction Date

Wed 11/02/2026

Auction Time

10:00

Auction Venue

Livestream Auction

Two bedroom mid terrace house with long rear garden requiring refurbishment

Of interest to cash buyers is this two bedroom mid terraced house which is one in a row of four. It has been in the same ownership for many years and is now to be sold with vacant possession. The property requires a complete program of improvement and modernisation and benefits from a long rear garden. It is located on a no through road less than a mile north east of the town centre near to a comprehensive range of amenities. On instruction of an administrator.

Tenure

Freehold

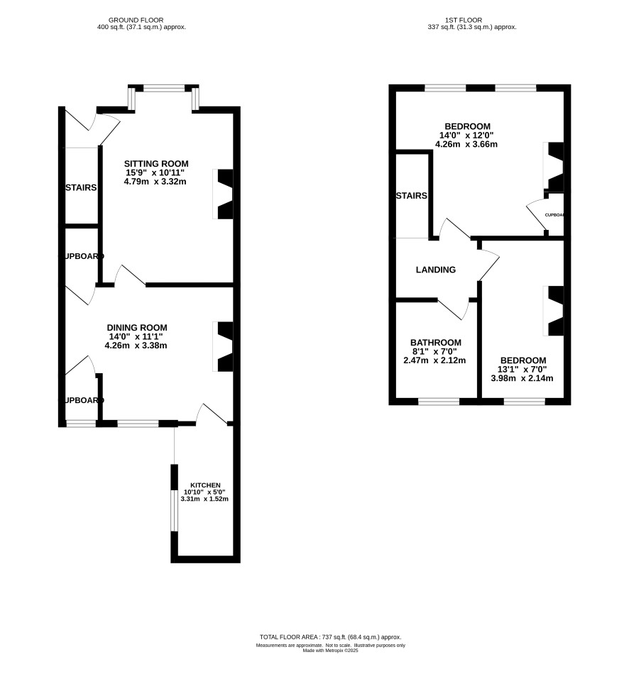
Ground floor

Entrance, sitting room, dining room, kitchen

First floor

Landing, two bedrooms, bathroom

Outside

Small front garden and long rear garden in need of attention

Viewings

Open viewings by appointment - the next are on Thursday 15 January. To book an appointment please call the Norwich office.

Energy Efficiency Rating (EPC)

Current Rating G

Services

Interested parties are requested to make their own enquiries to the relevant authorities as to the availability of services.

Local Authority

Breckland Council

Solicitors

Ward Gethin Archer (Dereham), Ref: Michaela Watts, Tel: 01362 852910

Important Notice to Prospective Buyers:

We draw your attention to the Special Conditions of Sale within the Legal Pack, referring to other charges in addition to the purchase price which may become payable. Such costs may include Search Fees, reimbursement of Sellers costs and Legal Fees, and Transfer Fees amongst others.

Additional Fees

Administration Charge - £1200 inc VAT payable on exchange of contracts.

Disbursements - Please see the legal pack for any disbursements listed that may become payable by the purchaser on completion.

View Larger Map

Disclaimer: The map preview provided above is for general guidance only and may not accurately reflect the exact location or surrounding buildings. Prospective buyers and interested parties are strongly advised to independently verify the precise location and surroundings before bidding.