For Sale By Auction | 10:00, 11 February 2026 | Lot 94

Spring Cottage, 58 Beach Road, Scratby, Great Yarmouth, Norfolk NR29 3AJ

Sold £132,000

  • Semi-Detached House
  • 2 Bedrooms
  • Tenure: Freehold

Call the team on 01603 505 100 for more information

Auction Date

Wed 11/02/2026

Auction Time

10:00

Auction Venue

Livestream Auction

Two bedroom semi detached cottage in need of refurbishment close to the beach

This charming two bedroom semi detached cottage has a combination of oil fired and electric heating. It has been in the same ownership for 40 years and is now to be sold with vacant possession. It benefits from off road parking and requires a program of modernisation and improvement to realise its full potential. The property is located around a third of a mile from a sandy beach. Ideal for owner occupation, holiday let or second home. On instruction of executors.

Tenure

Freehold

Note

As per the title of the property the right of way on the track on the right hand side of the property is on foot only up to the fence and anything beyond the fence is the ownership of the property to the rear. There is no access by vehicle and it is on foot only.

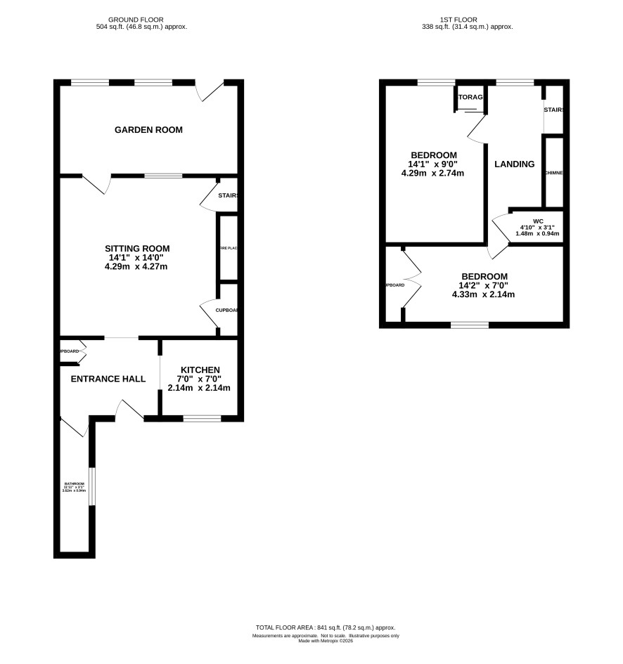
Ground floor

Entrance hall, kitchen, sitting room, garden room

First floor

Landing, two bedrooms, wc

Outside

Off road parking space at front, rear garden in need of attention

Council Tax Band

B

Viewings

Open viewings are arranged for the following days: Friday 6 February To book an appointment please call the Norwich office.

Energy Efficiency Rating (EPC)

Current Rating F

Services

Interested parties are requested to make their own enquiries to the relevant authorities as to the availability of services.

Local Authority

Great Yarmouth Borough Council

Solicitors

Chamberlins (Great Yarmouth), Ref: Rebekah Leach, Tel: 01493 720019

Important Notice to Prospective Buyers:

We draw your attention to the Special Conditions of Sale within the Legal Pack, referring to other charges in addition to the purchase price which may become payable. Such costs may include Search Fees, reimbursement of Sellers costs and Legal Fees, and Transfer Fees amongst others.

Additional Fees

Administration Charge - £1200 inc VAT payable on exchange of contracts.

Disbursements - Please see the legal pack for any disbursements listed that may become payable by the purchaser on completion.

View Larger Map

Disclaimer: The map preview provided above is for general guidance only and may not accurately reflect the exact location or surrounding buildings. Prospective buyers and interested parties are strongly advised to independently verify the precise location and surroundings before bidding.