For Sale By Auction | 10:00, 11 February 2026 | Lot 44

19 Victoria Road, Walton on the Naze, Essex CO14 8BU

*Guide | £130,000 - £150,000 (plus fees)

  • Terraced House
  • 3 Bedrooms
  • Tenure: Freehold

Call the team on 01473 558 888 for more information

Auction Date

Wed 11/02/2026

Auction Time

10:00

Auction Venue

Livestream Auction

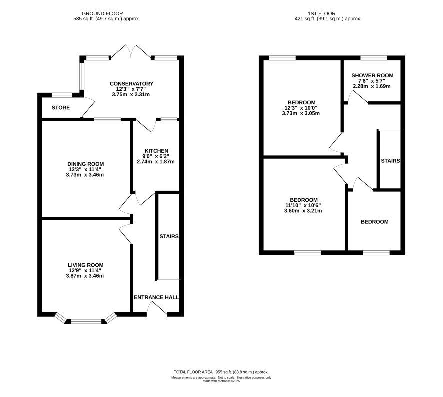
A mid-terraced house requiring superficial improvement

Constructed around 1950 this terraced house is located in a quiet residential area within walking distance of the town centre, beach and pier. The property offers 2 reception room, 3 bedroom accommodation which is in need of improvement but will ultimately provide a comfortable family home. We consider this to be a great opportunity for a DIY enthusiast.

Tenure

Freehold

Council Tax Band

B

Viewing

Open Viewings have been scheduled as follows: Fri 16th January - 10.30 to 11.00 Thurs 22nd January - 2.00 to 2.30 Tues 27th January - 11.30 to 12.00 BOOKING AN APPOINTMENT IS ESSENTIAL Please call 01473 558888 to confirm your attendance

Energy Efficiency Rating (EPC)

Current Rating Please refer to Legal Pack

Services

Interested parties are requested to make their own enquiries to the relevant authorities as to the availability of services.

Local Authority

Tendring District Council

Solicitors

Wellers Law Group, Ref: Isabella Pavitt, Tel: 020 3993 2546

Important Notice to Prospective Buyers:

We draw your attention to the Special Conditions of Sale within the Legal Pack, referring to other charges in addition to the purchase price which may become payable. Such costs may include Search Fees, reimbursement of Sellers costs and Legal Fees, and Transfer Fees amongst others.

Additional Fees

Buyer's Premium - £1200 inc VAT payable on exchange of contracts.

Administration Charge - £1200 inc VAT payable on exchange of contracts.

Disbursements - Please see the legal pack for any disbursements listed that may become payable by the purchaser on completion.

View Larger Map

Disclaimer: The map preview provided above is for general guidance only and may not accurately reflect the exact location or surrounding buildings. Prospective buyers and interested parties are strongly advised to independently verify the precise location and surroundings before bidding.