For Sale By Auction | 10:00, 11 February 2026 | Lot 1

6 Newmarket Street, Norwich, Norfolk NR2 2DW

*Guide | £120,000 - £140,000 (plus fees)

  • Terraced House
  • 2 Bedrooms
  • Tenure: Freehold

Call the team on 01603 505 100 for more information

Auction Date

Wed 11/02/2026

Auction Time

10:00

Auction Venue

Livestream Auction

Two bedroom mid terrace house requiring modernisation in the Golden Triangle

This two bedroom mid terrace house has around 56 sq/m of accommodation. It has been in the same ownership for over 50 years and is now to be sold with vacant possession. The property is partly double glazed, has electric heating, has been unoccupied for around two years and is in need of updating and improvement to realise its full potential. It is located in the sought after Norwich Golden Tringle area less than a mile south west of the city centre near a comprehensive range of services and amenities. On instruction of executors

Tenure

Freehold

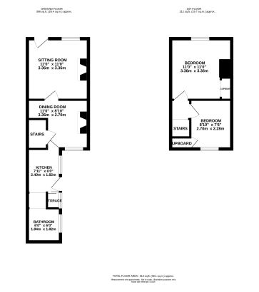
Ground floor

Sitting room, dining room, kitchen, bathroom

First floor

Two bedrooms

Outside

Front and rear garden in need of attention

Council Tax band

B

Viewings

Open viewings are arranged and the next are on : Tuesday 3 February Thursday 5 February Please call the Norwich office to book the next available appointment.

Energy Efficiency Rating (EPC)

Current Rating F

Services

Interested parties are requested to make their own enquiries to the relevant authorities as to the availability of services.

Local Authority

Norwich City Council

Solicitors

Rogers and Norton (Attleborough), Ref: Sue Bloomfield, Tel: 01953 458168

Important Notice to Prospective Buyers:

We draw your attention to the Special Conditions of Sale within the Legal Pack, referring to other charges in addition to the purchase price which may become payable. Such costs may include Search Fees, reimbursement of Sellers costs and Legal Fees, and Transfer Fees amongst others.

Additional Fees

Buyer's Premium - £960 inc VAT payable on exchange of contracts.

Administration Charge - £1200 inc VAT payable on exchange of contracts.

Disbursements - Please see the legal pack for any disbursements listed that may become payable by the purchaser on completion.

View Larger Map

Disclaimer: The map preview provided above is for general guidance only and may not accurately reflect the exact location or surrounding buildings. Prospective buyers and interested parties are strongly advised to independently verify the precise location and surroundings before bidding.