For Sale By Auction | 10:00, 11 February 2026 | Lot 46

3 Bryanita Court, Church Road, Tiptree, Colchester, Essex CO5 0SU

*Guide | £120,000 (plus fees)

  • Flat
  • 4 Bedrooms
  • Tenure: Leasehold. 99 years from 1 October 1989

Call the team on 01702 939933 for more information

Auction Date

Wed 11/02/2026

Auction Time

10:00

Auction Venue

Livestream Auction

Of interest to cash buyers only, a deceptively large four bedroomed vacant leasehold first floor flat.

Situated in a village central location within a mixed use development this large flat offers over 1000 sq. ft of floorspace. the property requires some improvement/redecoration. The Lease has approximately 63 years remaining. The property benefits from 2 allocated parking spaces. The property may be suitable for conversion into two separate flats subject to all necessary consents

Tenure

Leasehold. 99 years from 1 October 1989

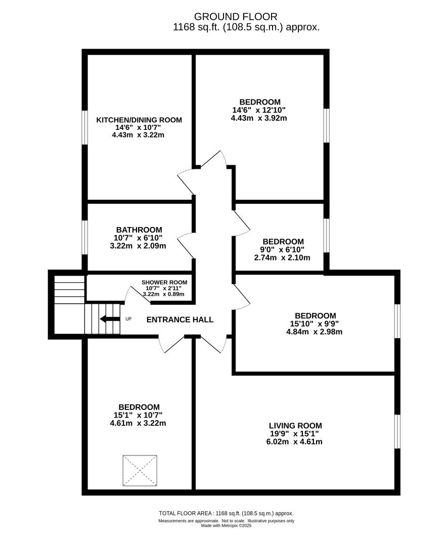
Ground Floor Entrance Door hall and stairs leading to

First Floor

Landing witth doors off to Lounge 19'9 x 15'1" Kitchen/Diner 14'6" x 10' Bedroom 1 14'6" x 12'9 Bedroom 2 15'1" x 10'7" Bedroom 3 15'111" x 9'9" Bedroom 4 9' x 6'10" Bathroom/WC 10' x 7'3" Shower Room 10' x 2'8"

Externally

2 Allocated Car Parking paces within communal car park

Leasehold information

Term : 99 years from 1 October 1989 (63 years remaining)

Council Tax Band

B

Energy Efficiency Rating (EPC)

Current Rating E

Services

Interested parties are requested to make their own enquiries to the relevant authorities as to the availability of services.

Local Authority

Colchester Borough Council

Solicitors

Ascent Legal Manchester, One St. Peters Square, Ref: Ascent Legal Manchester, Tel: 0161 838 3105

Important Notice to Prospective Buyers:

We draw your attention to the Special Conditions of Sale within the Legal Pack, referring to other charges in addition to the purchase price which may become payable. Such costs may include Search Fees, reimbursement of Sellers costs and Legal Fees, and Transfer Fees amongst others.

Additional Fees

Buyer's Premium - £1560 inc VAT payable on exchange of contracts.

Administration Charge - £1200 inc VAT payable on exchange of contracts.

Disbursements - Please see the legal pack for any disbursements listed that may become payable by the purchaser on completion.

View Larger Map

Disclaimer: The map preview provided above is for general guidance only and may not accurately reflect the exact location or surrounding buildings. Prospective buyers and interested parties are strongly advised to independently verify the precise location and surroundings before bidding.