For Sale By Auction | 10:00, 11 February 2026 | Lot 86

Land Rear of Post Office, 158 Bridge Road, Sutton Bridge, Lincolnshire PE12 9SF

Sold £35,000

  • Residential Development
  • Tenure: Freehold

Call the team on 01553 777 773 for more information

Auction Date

Wed 11/02/2026

Auction Time

10:00

Auction Venue

Livestream Auction

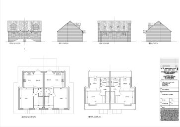
An opportunity to acquire a freehold parcel of land with Planning Permission for a pair of three bedroom semi-detached houses located in the village of Sutton Bridge

This freehold parcel of land has planning permission for a pair of three bedroom semi-detached houses. Further information can be found on the South Holland District Council website under Planning Reference: H18-1174-22. The properties will briefly comprise entrance hall, lounge, kitchen/diner and cloakroom to the ground floor and two double bedrooms and a family bathroom on the first floor. Each house will benefit from two parking spaces and rear garden. Sutton Bridge is a small market town off the A17, with access to the larger towns of King's Lynn and Spalding. There are local shopping facilities and restaurants in the village.

Tenure

Freehold

Accommodation

Entrance hall, lounge, kitchen/diner and cloakroom to the ground floor and two double bedrooms and a family bathroom

Services

Interested parties are requested to make their own enquiries to the relevant authorities as to the availability of services.

Local Authority

South Holland District Council

Solicitors

Fraser Dawbarns (Ely), Ref: Eileanora Ni-Charthaig, Tel: 01353 383483

Important Notice to Prospective Buyers:

We draw your attention to the Special Conditions of Sale within the Legal Pack, referring to other charges in addition to the purchase price which may become payable. Such costs may include Search Fees, reimbursement of Sellers costs and Legal Fees, and Transfer Fees amongst others.

Additional Fees

Buyer's Premium - £1200 inc VAT payable on exchange of contracts.

Administration Charge - £1200 inc VAT payable on exchange of contracts.

Disbursements - Please see the legal pack for any disbursements listed that may become payable by the purchaser on completion.

View Larger Map

Disclaimer: The map preview provided above is for general guidance only and may not accurately reflect the exact location or surrounding buildings. Prospective buyers and interested parties are strongly advised to independently verify the precise location and surroundings before bidding.