For Sale By Auction | 10:00, 11 February 2026 | Lot 5

9 Barford Road, Marlingford, Norwich, Norfolk NR9 5HU

*Guide | £160,000 - £180,000 (plus fees)

  • Semi-Detached House
  • 3 Bedrooms
  • Tenure: Freehold

Call the team on 01603 505 100 for more information

Auction Date

Wed 11/02/2026

Auction Time

10:00

Auction Venue

Livestream Auction

A three bedroom semi detached house in need of updating and modernisation

A three bedroom ex local authority semi detached house with far reaching views to the rear over open countryside. The property is now vacant and ready for a new lease of life being ideal for family occupation, first purchase or builder looking for a project to refurbish or extend (stpp). The property has oil heating, double glazing and benefits from generous gardens with ample off road parking. Marlingford is close to the Norwich Southern Bypass, about six miles from Wymondham and eight miles from Norwich.

Tenure

Freehold

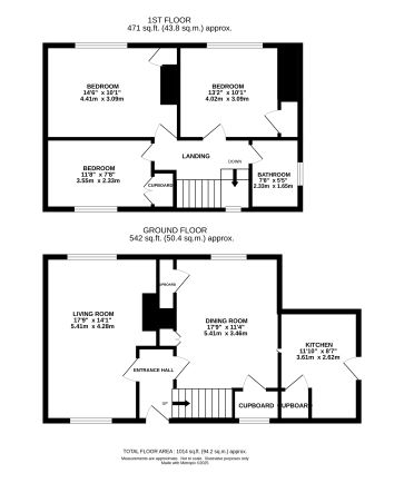
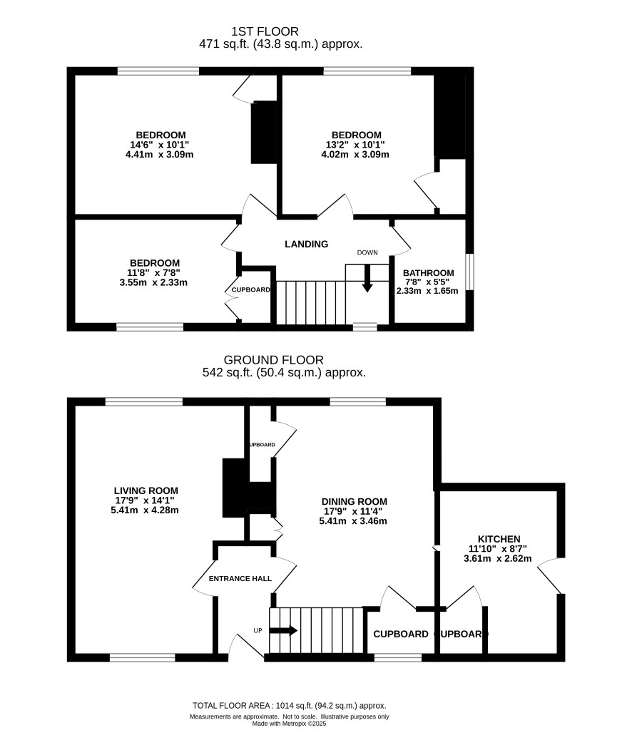
Ground Floor

Entrance hall, lounge, dining room, kitchen

First Floor

Landing, three bedrooms, bathroom

Outside

Large gardens and off road parking, The sewage treatment plant located behind number 10 will be included within the sale.

Council Tax Band

B

Viewings

Open viewings are arranged and the next are on : Monday 2 February Monday 9 February To book an appointment please call the Norwich office.

Energy Efficiency Rating (EPC)

Current Rating C

Services

Interested parties are requested to make their own enquiries to the relevant authorities as to the availability of services.

Local Authority

South Norfolk Council

Solicitors

Howes Percival (Norwich), Ref: Sally Rackham, Tel: 01603 284250

Important Notice to Prospective Buyers:

We draw your attention to the Special Conditions of Sale within the Legal Pack, referring to other charges in addition to the purchase price which may become payable. Such costs may include Search Fees, reimbursement of Sellers costs and Legal Fees, and Transfer Fees amongst others.

Additional Fees

Buyer's Premium - £900 inc VAT payable on exchange of contracts.

Administration Charge - £1200 inc VAT payable on exchange of contracts.

Disbursements - Please see the legal pack for any disbursements listed that may become payable by the purchaser on completion.

View Larger Map

Disclaimer: The map preview provided above is for general guidance only and may not accurately reflect the exact location or surrounding buildings. Prospective buyers and interested parties are strongly advised to independently verify the precise location and surroundings before bidding.