For Sale By Auction | 10:00, 11 February 2026 | Lot 40

2 White Horse Common Cottages, Happisburgh Road, White Horse Common, North Walsham, Norfolk NR28 9NG

*Guide | £100,000 - £120,000 (plus fees)

  • Cottage
  • 3 Bedrooms
  • Tenure: Freehold

Call the team on 01603 505 100 for more information

Auction Date

Wed 11/02/2026

Auction Time

10:00

Auction Venue

Livestream Auction

Three bedroom middle terrace cottage located in a rural area to the east side of North Walsham currently let on an AST producing £600.00 pcm

The cottage is one of three being offered for sale in this auction. All three cottages are similar and have been tenanted for a number of years. It is let on an AST and is producing £600.00pcm. The tenants would like to remain and are currently managed by an agent. Each cottage has designated parking areas to the front. This would make an ideal investment opportunity for a purchaser/landlord. Number 2 is the middle cottage and is need of some modernisation. Located in the hamlet of White Horse Common the cottage has wide reaching field views whilst being just a couple of minutes drive from North Walsham town centre with further amenities. There will be an option to purchase all three properties, please contact the Norwich office to discuss.

Tenure

Freehold

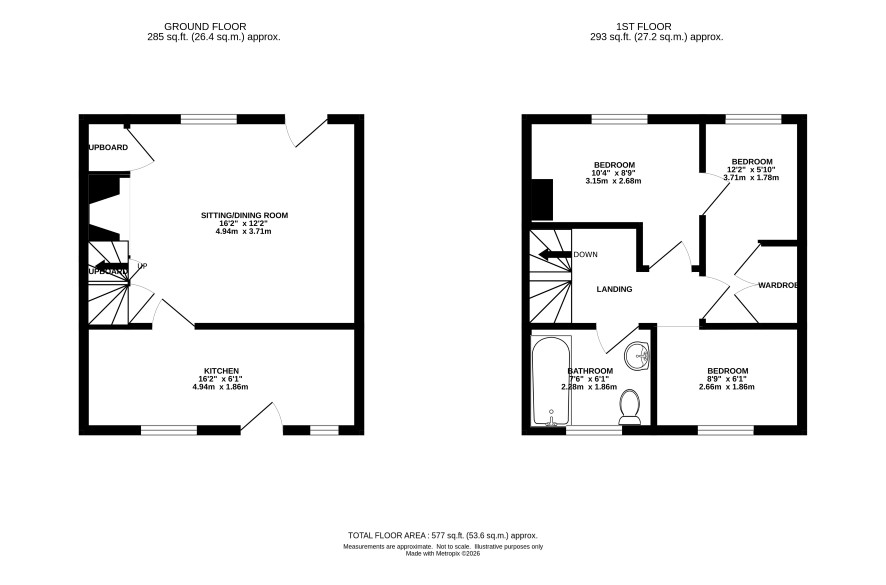
Ground floor

Hall, sitting room, kitchen

First floor

Landing, three bedrooms, bathroom

Exterior

There are front and rear gardens and designated parking areas.

Services

The property uses a septic tank shared by the three adjoining cottages

Council Tax Band

B

Viewings

Viewings are being offered strictly by appointment only and are offered on the following days: Monday 2 February Thursday 5 February Please contact the Norwich office to book your appointment time.

Energy Efficiency Rating (EPC)

Current Rating D

Services

Interested parties are requested to make their own enquiries to the relevant authorities as to the availability of services.

Local Authority

North Norfolk District Council

Solicitors

Ashtons Legal (Norwich), Ref: Claire Beckett, Tel: 01603 703078

Important Notice to Prospective Buyers:

We draw your attention to the Special Conditions of Sale within the Legal Pack, referring to other charges in addition to the purchase price which may become payable. Such costs may include Search Fees, reimbursement of Sellers costs and Legal Fees, and Transfer Fees amongst others.

Additional Fees

Buyer's Premium - £1140 inc VAT payable on exchange of contracts.

Administration Charge - £1200 inc VAT payable on exchange of contracts.

Disbursements - Please see the legal pack for any disbursements listed that may become payable by the purchaser on completion.

View Larger Map

Disclaimer: The map preview provided above is for general guidance only and may not accurately reflect the exact location or surrounding buildings. Prospective buyers and interested parties are strongly advised to independently verify the precise location and surroundings before bidding.