For Sale By Auction | 10:00, 11 February 2026 | Lot 62

3 Belton Cottage, Hales Street, Tivetshall St. Margaret, Norwich, Norfolk NR15 2EG

*Guide | £80,000 - £100,000 (plus fees)

  • Cottage
  • 2 Bedrooms
  • Tenure: Freehold

Call the team on 01603 505 100 for more information

Auction Date

Wed 11/02/2026

Auction Time

10:00

Auction Venue

Livestream Auction

Mid-terrace two bedroom cottage situated in the rural village of Tivetshall St. Margaret in Norfolk. In the same family ownership for a large number of years the property now requires modernisation and some repair

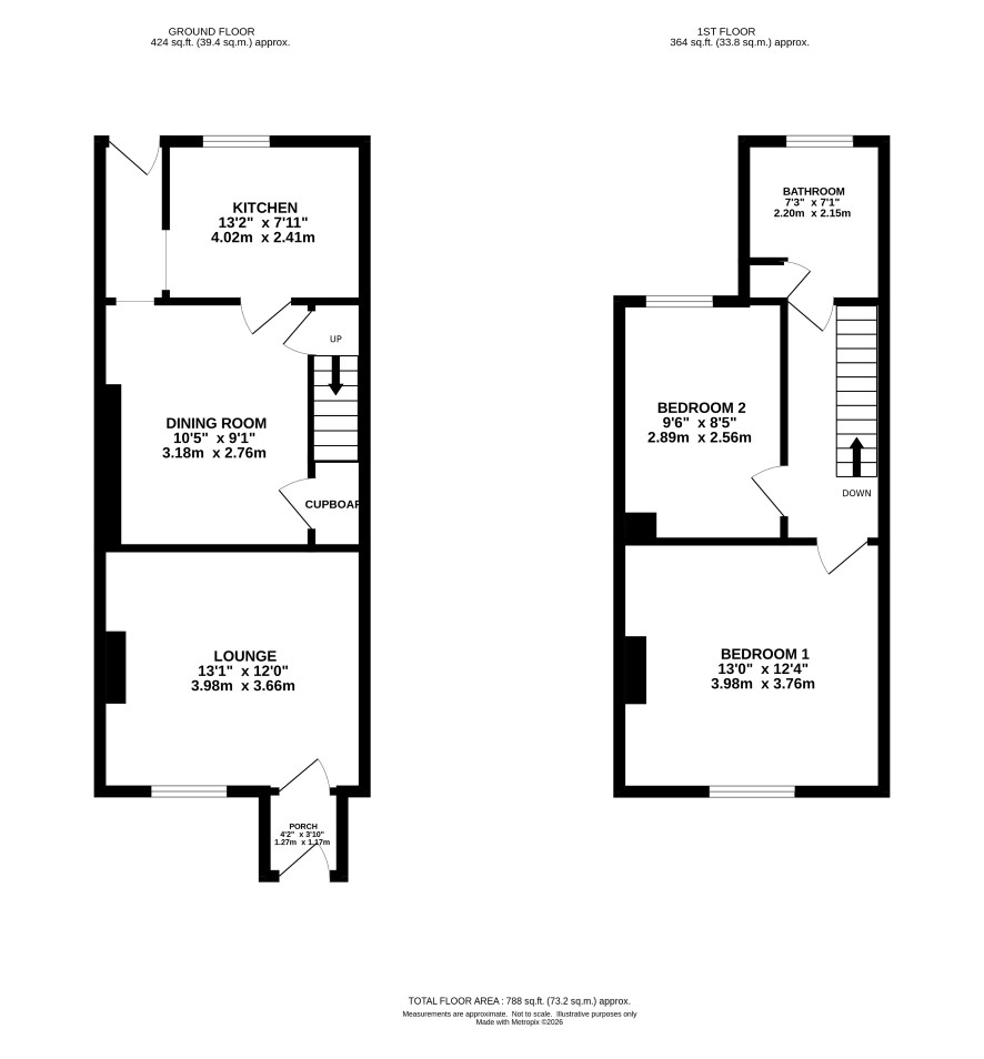
Set in a charming location down a quiet road this two bedroom terrace cottage now requires some repair and refurbishment. With a traditional cottage layout with small gated front garden with entrance porch leading to the main living space, separate dining room and kitchen on the ground floor, with two bedrooms and bathroom above. To the rear is a good sized garden with brick and tile outbuilding/store and coal/log store and the property benefits from wide reaching field views to the front however the railway line lays close to the rear boundary. The property is located in Tivetshall St. Margaret a small rural village in Norfolk close to Pulham with further amenities and is close to the A140 with its road connections to Norwich. Offered for sale by executors this would make an ideal project for a first time buyer/investor. NB: A neighbouring small parcel of land at the end of the terrace row, convenient for parking is for sale in this auction

Tenure

Freehold

Ground floor

Front porch, sitting room, dining room, kitchen

First floor

Landing, two bedrooms, bathroom

Exterior

Gated front garden leading to front entrance. To the rear a West facing rear garden with brick and tile outbuilding/store with coal/log store beside.

Council Tax Band

B

Viewings

Viewings are being offered by appointment only on the following days Monday 26th January Thursday 29th January Monday 2nd February Wednesday 4th February Please contact the Norwich Office to book your appointment time

Energy Efficiency Rating (EPC)

Current Rating E

Services

Interested parties are requested to make their own enquiries to the relevant authorities as to the availability of services.

Local Authority

South Norfolk Council

Solicitors

Spire Solicitors LLP (Norwich), Ref: Tracy Guest, Tel: 01603 886221

Important Notice to Prospective Buyers:

We draw your attention to the Special Conditions of Sale within the Legal Pack, referring to other charges in addition to the purchase price which may become payable. Such costs may include Search Fees, reimbursement of Sellers costs and Legal Fees, and Transfer Fees amongst others.

Additional Fees

Buyer's Premium - £1140 inc VAT payable on exchange of contracts.

Administration Charge - £1200 inc VAT payable on exchange of contracts.

Disbursements - Please see the legal pack for any disbursements listed that may become payable by the purchaser on completion.

View Larger Map

Disclaimer: The map preview provided above is for general guidance only and may not accurately reflect the exact location or surrounding buildings. Prospective buyers and interested parties are strongly advised to independently verify the precise location and surroundings before bidding.