For Sale By Auction | 10:00, 11 February 2026 | Lot 105

10A Mill Hill Road, Norwich, Norfolk NR2 3DP

Sold £411,000

  • Block of Apartments
  • 4 Bedrooms
  • Tenure: Freehold

Call the team on 01603 505 100 for more information

Auction Date

Wed 11/02/2026

Auction Time

10:00

Auction Venue

Livestream Auction

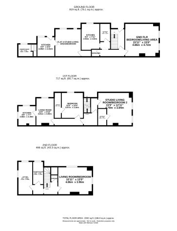
Investment Opportunity. Block of four self-contained residential flats in prime Golden Triangle location. One flat was let until recently producing £750pcm. Three further flats require works to complete giving a potential yield in excess of £36,000 pa following completion.

A block of four self-contained residential flats situated close to the city centre of Norwich. Flat no 4 is a well-presented one bedroom ground floor studio flat with separate kitchen and bathroom. Until recently it was tenanted producing £750 pcm (£9,000 pa) and has its own separate entrance. The other three are in need of works to complete. Current layout would suggest a large one bedroom studio flat on the ground floor, a generous sized apartment on the first floor (which could be split into a one bedroom and separate studio flat if required) and on the upper floor is a further one bedroom studio apartment. All of these apartments require work to complete but once finished the property would yield in excess of £36,000 pa. In a prime Golden Triangle location within Norwich city centre popular with professionals and students. Great opportunity for an investment purchase.

Tenure

Freehold

Flat 4

Now vacant - previously let on AST for £750pcm

Parking

Permit parking available on the street

Council Tax Band

A

Viewings

Open viewings are arranged on Tuesday 10 February. To book an appointment please contact the Norwich office.

Energy Efficiency Rating (EPC)

Current Rating E, E, E, D

Services

Interested parties are requested to make their own enquiries to the relevant authorities as to the availability of services.

Local Authority

Norwich City Council

Solicitors

DKLM LLP, Ref: Charles Slater, Tel: 020 7549 7452

Important Notice to Prospective Buyers:

We draw your attention to the Special Conditions of Sale within the Legal Pack, referring to other charges in addition to the purchase price which may become payable. Such costs may include Search Fees, reimbursement of Sellers costs and Legal Fees, and Transfer Fees amongst others.

Additional Fees

Buyer's Premium - £1560 inc VAT payable on exchange of contracts.

Administration Charge - £1200 inc VAT payable on exchange of contracts.

Disbursements - Please see the legal pack for any disbursements listed that may become payable by the purchaser on completion.

View Larger Map

Disclaimer: The map preview provided above is for general guidance only and may not accurately reflect the exact location or surrounding buildings. Prospective buyers and interested parties are strongly advised to independently verify the precise location and surroundings before bidding.