For Sale By Auction | 10:00, 25 March 2026 | Lot 67

Land at 131 Norwich Road, Norwich, Norfolk NR5 0LE

*Guide | £130,000 - £150,000 (plus fees)

  • Plot
  • Tenure: Freehold

Call the team on 01603 505 100 for more information

Auction Date

Wed 25/03/2026

Auction Time

10:00

Auction Venue

Livestream Auction

Large building plot set in over a third of an acre with planning for a detached house

An exciting opportunity to purchase a large 0.35 acre single building plot with full planning permission to build a four bedroom detached house with accommodation extending to over 2,000 sq/ft. This large rectangular plot of land is between 129 and 133 Norwich Road and is located around four miles west of the city centre with east access to Longwater and the A47. We are informed that the seller has already paid for the nutrient neutrality credits.

Tenure

Freehold

Planning

Full planning permission was granted by South Norfolk District Council on 29th September 2025 for erection of one detached dwelling. Application number 2025/0719. Further details and plans can be found on the public access website of South Norfolk Council southnorfolkandbraodland.gov.uk/planning.

Proposed Accommodation

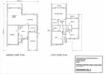
Ground floor: entrance hall, wc, lounge, family room, kitchen, utility, garage First floor: landing, four bedrooms of which one ensuite, bathroom Outside: off road parking to front, front and rear garden.

Note

Please would all interested parties register their interest with the Auctioneers in order that they may be kept up to date with any developments.

Viewing

Any reasonable time during daylight hours. Prospective purchasers should note that no liability can be held against either the vendor or the Agents, Auction House East Anglia as Auctioneers, in respect of any viewing of the land. All persons viewing should be aware that they enter the site entirely at their own risk.

Services

Interested parties are requested to make their own enquiries to the relevant authorities as to the availability of services.

Local Authority

South Norfolk Council

Solicitors

Rogers and Norton (Norwich), Ref: Michele Walters, Tel: 01603 666001

Important Notice to Prospective Buyers:

We draw your attention to the Special Conditions of Sale within the Legal Pack, referring to other charges in addition to the purchase price which may become payable. Such costs may include Search Fees, reimbursement of Sellers costs and Legal Fees, and Transfer Fees amongst others.

Additional Fees

Buyer's Premium - £600 inc VAT payable on exchange of contracts.

Administration Charge - £1200 inc VAT payable on exchange of contracts.

Disbursements - Please see the legal pack for any disbursements listed that may become payable by the purchaser on completion.

View Larger Map

Disclaimer: The map preview provided above is for general guidance only and may not accurately reflect the exact location or surrounding buildings. Prospective buyers and interested parties are strongly advised to independently verify the precise location and surroundings before bidding.