For Sale By Auction | 10:00, 25 March 2026

5 Coronation Avenue, Crowland, Peterborough, Cambridgeshire PE6 0BW

*Guide | £160,000 (plus fees)

  • Semi-Detached House
  • 3 Bedrooms
  • Tenure: Freehold

Call the team on 01733 889833 for more information

Auction Date

Wed 25/03/2026

Auction Time

10:00

Auction Venue

Livestream Auction

A three bedroom semi detached house in need of renovation and completing with a large plot measuring 61.25 m x 8.27 metres (stms)

This three bedroom house has had work carried out with new windows, new kitchen and shower room. The remaining house needs renovation ideal for a builder/developer to complete the works. The property has a large garden and garage. Crowland is located North of Peterborough and offers local facilities. A main line into London Kings Cross can be found at Peterborough.

Tenure

Freehold

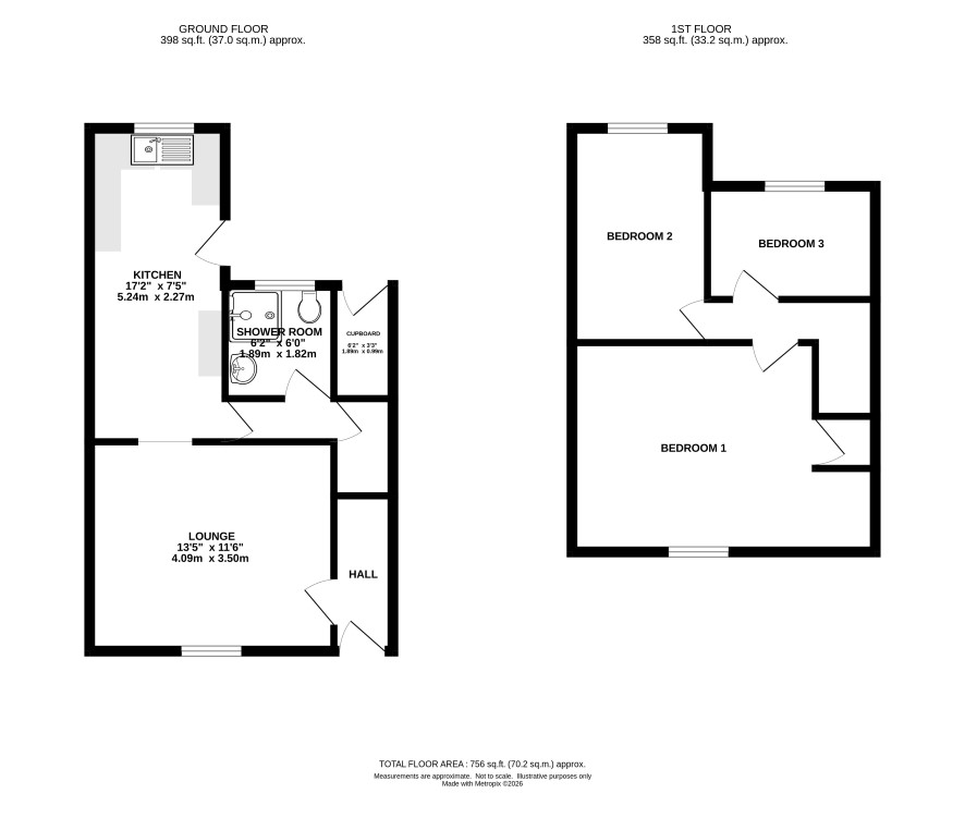
Ground Floor

Hall, lounge, recently installed kitchen, new shower room

First Floor

Landing, three bedrooms

Outside

Parking to front access to detached single garage and rear garden with store and w.c.

Council Tax Band

A

Energy Efficiency Rating (EPC)

Current Rating D

Services

Interested parties are requested to make their own enquiries to the relevant authorities as to the availability of services.

Local Authority

South Holland District Council

Solicitors

Buckles, Ref: Michaela Paola

Important Notice to Prospective Buyers:

We draw your attention to the Special Conditions of Sale within the Legal Pack, referring to other charges in addition to the purchase price which may become payable. Such costs may include Search Fees, reimbursement of Sellers costs and Legal Fees, and Transfer Fees amongst others.

Additional Fees

Buyer's Premium - £1200 inc VAT payable on exchange of contracts.

Administration Charge - £1200 inc VAT payable on exchange of contracts.

Disbursements - Please see the legal pack for any disbursements listed that may become payable by the purchaser on completion.

View Larger Map

Disclaimer: The map preview provided above is for general guidance only and may not accurately reflect the exact location or surrounding buildings. Prospective buyers and interested parties are strongly advised to independently verify the precise location and surroundings before bidding.