For Sale By Auction | 10:00, 25 March 2026 | Lot 76

Romar House, 12 Faraday Road, Leigh-On-Sea, Essex SS9 5JU

*Guide | £850,000 (plus fees)

  • Light Industrial
  • Tenure: Freehold

Call the team on 01702 939933 for more information

Auction Date

Wed 25/03/2026

Auction Time

10:00

Auction Venue

Livestream Auction

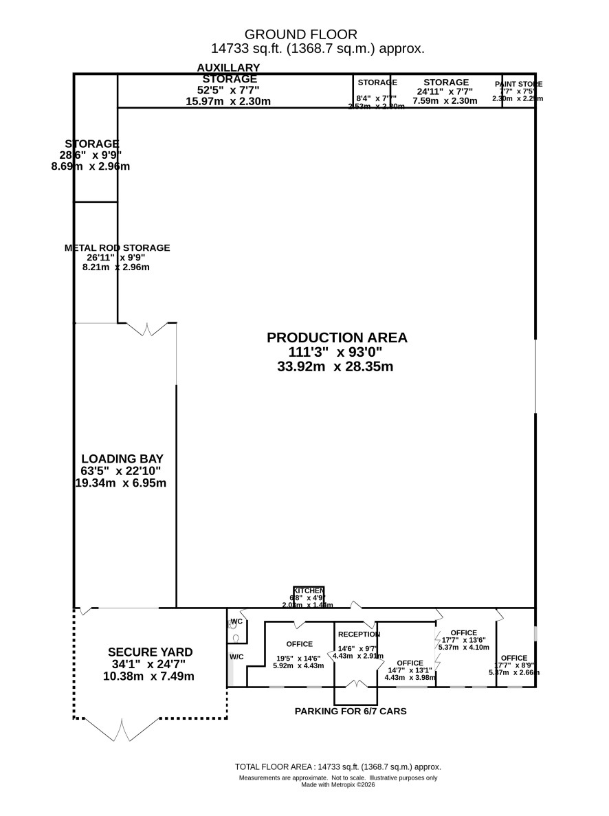
Freehold vacant detached factory and offices of over 14,000 sq. ft.

Industrial premises situated in the popular Progress Road Estate just of the A127 at Leigh on Sea. The property requires some improvement but is offered at a very competitive Guide Price! The building offers clear production space, offices, storage areas loading bay, secure yard and parking for some 6-7 cars. Good access is provided from the front and side of the building served by a 5 Ton gantry crane.

Tenure

Freehold

Main Production Area

111'3" x 93' 10310 sq.ft

Offices to front

4 rooms plus reception 1003 sq ft

Storage

Various Storage areas 1245 sq.ft

Loading Bay served by 3 Ton crane

63'5" x 22'10" 1450 sq. ft

Kitchen and Ladies WCs

Secure Yard

34'1" x 24'7" 838 sq. ft

Parking to Front

6/7 Car parking Spaces

Floor Schedule

Production: 10310 sq. ft Offices: 1002 sq. ft Storage Areas: 1245 sq. ft Loading Bay: 1450 sq. ft Total Internal Floor Area 14007 sq ft Plus Kitchen and ladies and Gents WCs and Secure Yard: 838 sq.ft

Energy Efficiency Rating (EPC)

Current Rating D

Services

Interested parties are requested to make their own enquiries to the relevant authorities as to the availability of services.

Solicitors

Jefferies Solicitors, Ref: Amelia Hayes, Tel: 01702 443478

Important Notice to Prospective Buyers:

We draw your attention to the Special Conditions of Sale within the Legal Pack, referring to other charges in addition to the purchase price which may become payable. Such costs may include Search Fees, reimbursement of Sellers costs and Legal Fees, and Transfer Fees amongst others.

Additional Fees

Buyer's Premium - £1200 inc VAT payable on exchange of contracts.

Administration Charge - £1200 inc VAT payable on exchange of contracts.

Disbursements - Please see the legal pack for any disbursements listed that may become payable by the purchaser on completion.

View Larger Map

Disclaimer: The map preview provided above is for general guidance only and may not accurately reflect the exact location or surrounding buildings. Prospective buyers and interested parties are strongly advised to independently verify the precise location and surroundings before bidding.