For Sale By Auction | 10:00, 25 March 2026

20 Seagate Road, Hunstanton, Norfolk PE36 5BD

*Guide | £180,000 - £200,000 (plus fees)

  • Semi-Detached House
  • 3 Bedrooms
  • Tenure: Freehold

Call the team on 01553 777 773 for more information

Auction Date

Wed 25/03/2026

Auction Time

10:00

Auction Venue

Livestream Auction

A three bedroom semi-detached house located in the seaside resort of Hunstanton with sea views to rear

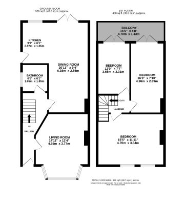
This three bedroom semi detached house is in need of some updating and is ideally positioned in Hunstanton with sea views to rear. The property briefly comprises living room, dining room, kitchen and bathroom to the ground floor. To the first floor there are three bedrooms. Outside there is a small front garden and a rear garden with parking via rear access. The property also benefits from gas central heating and double glazing. The property is located close to Hunstanton sea front promenade and a short distance from the town centre and local amenities.

Tenure

Freehold

Ground Floor

Living room, dining room, kitchen and bathroom

First Floor

Three bedrooms

Outside

Small front garden, rear garden and parking to rear

Council Tax Band

B

Energy Efficiency Rating (EPC)

Current Rating D

Services

Interested parties are requested to make their own enquiries to the relevant authorities as to the availability of services.

Local Authority

Kings Lynn and West Norfolk Borough Council

Solicitors

SJP Solicitors, Ref: Emma Milsom, Tel: 01485532662

Important Notice to Prospective Buyers:

We draw your attention to the Special Conditions of Sale within the Legal Pack, referring to other charges in addition to the purchase price which may become payable. Such costs may include Search Fees, reimbursement of Sellers costs and Legal Fees, and Transfer Fees amongst others.

Additional Fees

Buyer's Premium - £1200 inc VAT payable on exchange of contracts.

Administration Charge - £1200 inc VAT payable on exchange of contracts.

Disbursements - Please see the legal pack for any disbursements listed that may become payable by the purchaser on completion.

View Larger Map

Disclaimer: The map preview provided above is for general guidance only and may not accurately reflect the exact location or surrounding buildings. Prospective buyers and interested parties are strongly advised to independently verify the precise location and surroundings before bidding.