For Sale By Auction | 10:00, 25 March 2026 | Lot 45

5 Trafalgar Terrace, Avenue Road, North Walsham, Norfolk NR28 9JS

*Guide | £110,000 - £130,000 (plus fees)

  • Terraced House
  • 2 Bedrooms
  • Tenure: Freehold

Call the team on 01603 505 100 for more information

Auction Date

Wed 25/03/2026

Auction Time

10:00

Auction Venue

Livestream Auction

A vacant two bedroom terrace house requiring updating

This two bedroom terrace house has been in the same family ownership for many years but is now vacant and in need of updating. The property benefits from off road parking and is situated within a short walk of the town centre and railway station. The property has a private rear garden with useful brick out house and there is additional residents parking to the side and rear of the property. It would be ideal for investment or owner occupation.

Tenure

Freehold

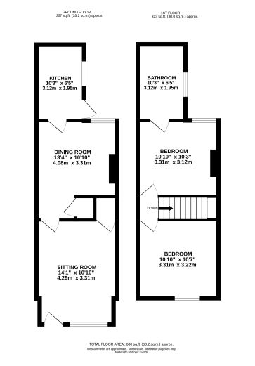
Ground Floor

Extended sitting room, dining room, kitchen

First Floor

Two double bedrooms, bathroom

Outside

Front garden currently with an off road parking space, private well screened rear garden with brick outhouse.

Council Tax Band

A

Viewings

Open viewings are arranged and the next are on: Tuesday 3 March Friday 6 March Please call the Norwich office to book the next available appointment.

Energy Efficiency Rating (EPC)

Current Rating E

Services

Interested parties are requested to make their own enquiries to the relevant authorities as to the availability of services.

Local Authority

North Norfolk District Council

Solicitors

Hansells (North Walsham), Ref: Sue Lloyd, Tel: 01603 753439

Important Notice to Prospective Buyers:

We draw your attention to the Special Conditions of Sale within the Legal Pack, referring to other charges in addition to the purchase price which may become payable. Such costs may include Search Fees, reimbursement of Sellers costs and Legal Fees, and Transfer Fees amongst others.

Additional Fees

Buyer's Premium - £840 inc VAT payable on exchange of contracts.

Administration Charge - £1200 inc VAT payable on exchange of contracts.

Disbursements - Please see the legal pack for any disbursements listed that may become payable by the purchaser on completion.

View Larger Map

Disclaimer: The map preview provided above is for general guidance only and may not accurately reflect the exact location or surrounding buildings. Prospective buyers and interested parties are strongly advised to independently verify the precise location and surroundings before bidding.