For Sale By Auction | 10:00, 25 March 2026 | Lot 37

The Lilacs, Mill Road, Hempnall, Norwich, Norfolk NR15 2LP

*Guide | £275,000 (plus fees)

  • Detached House
  • 3 Bedrooms
  • Tenure: Freehold

Call the team on 01603 505 100 for more information

Auction Date

Wed 25/03/2026

Auction Time

10:00

Auction Venue

Livestream Auction

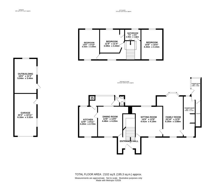
Extended three bedroom detached house requiring modernisation.

Having been in the same ownership for many years, this attractive, extended detached family home presents an excellent opportunity for buyers looking to modernise and add value. Situated within the popular village of Hempnall the property occupies a generous plot extending to approximately 0.21 acre. Whilst requiring a programme of modernisation, it offers significant potential to create a long-term home or investment. The property benefits from gas fired central heating and comprises, three receptions, kitchen/breakfast room, ground floor cloakroom and shower-room. To the first floor are three bedrooms and main bathroom. Externally, the property offers off road parking with single garage with workshop. On instruction of Executors.

Tenure

Freehold

Ground floor,

Main reception hall, stairs to first floor, sitting room, dining room, family room, kitchen/breakfast room, shower room, conservatory and ground floor cloakroom.

First floor

Three bedrooms and main bathroom.

Outside

Drive way leading to single garage with workshop behind the rear garden is mainly laid to lawn.

Council tax and services

South Norfolk Council - Band D Gas fired central heating, mains water and drainage.

Viewings

Viewings are currently being arranged on: Monday 16 March Please call the Norwich office to book an appointment.

Energy Efficiency Rating (EPC)

Current Rating E

Services

Interested parties are requested to make their own enquiries to the relevant authorities as to the availability of services.

Local Authority

South Norfolk Council

Solicitors

Cozens-Hardy LLP, Ref: Olivia Hawkes, Tel: 01603 625231

Important Notice to Prospective Buyers:

We draw your attention to the Special Conditions of Sale within the Legal Pack, referring to other charges in addition to the purchase price which may become payable. Such costs may include Search Fees, reimbursement of Sellers costs and Legal Fees, and Transfer Fees amongst others.

Additional Fees

Buyer's Premium - £960 inc VAT payable on exchange of contracts.

Administration Charge - £1200 inc VAT payable on exchange of contracts.

Disbursements - Please see the legal pack for any disbursements listed that may become payable by the purchaser on completion.

View Larger Map

Disclaimer: The map preview provided above is for general guidance only and may not accurately reflect the exact location or surrounding buildings. Prospective buyers and interested parties are strongly advised to independently verify the precise location and surroundings before bidding.