For Sale By Auction | 10:00, 25 March 2026

91 High Street, Barkway, Royston, Hertfordshire SG8 8ED

*Guide | £180,000 (plus fees)

  • Detached House
  • 2 Bedrooms
  • Tenure: Freehold

Call the team on 01223 483445 for more information

Auction Date

Wed 25/03/2026

Auction Time

10:00

Auction Venue

Livestream Auction

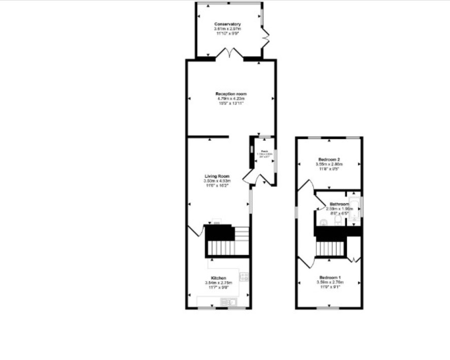
Detached Village Cottage Requiring Modernisation

Located in the picturesque village of Barkway is this charming two bedroom detached cottage in need of modernisation throughout. The property has two bedrooms upstairs with a bathroom and has two reception rooms downstairs plus a conservatory and a kitchen to the front. The entrance to the property is via the front door to the right hand side of the property which leads into an entrance porch. Out the property has a lovely well stocked rear garden. Parking for the property is on road parking.

Tenure

Freehold

Downstairs Accommodation

Entrance Porch, Lounge, dining area, conservatory, kitchen.

Upstairs Accommodation

Two bedrooms and a bathroom.

Outside

A good size mature rear garden.

Council Tax Band

E

Energy Efficiency Rating (EPC)

Current Rating E

Services

Interested parties are requested to make their own enquiries to the relevant authorities as to the availability of services.

Local Authority

North Hertfordshire District Council

Solicitors

Enact Conveyancing, PO Box Hk3, Ref: Enact Conveyancing, Tel: 0344 244 3282

Important Notice to Prospective Buyers:

We draw your attention to the Special Conditions of Sale within the Legal Pack, referring to other charges in addition to the purchase price which may become payable. Such costs may include Search Fees, reimbursement of Sellers costs and Legal Fees, and Transfer Fees amongst others.

Additional Fees

Buyer's Premium - £1560 inc VAT payable on exchange of contracts.

Administration Charge - £1200 inc VAT payable on exchange of contracts.

Disbursements - Please see the legal pack for any disbursements listed that may become payable by the purchaser on completion.

View Larger Map

Disclaimer: The map preview provided above is for general guidance only and may not accurately reflect the exact location or surrounding buildings. Prospective buyers and interested parties are strongly advised to independently verify the precise location and surroundings before bidding.