For Sale By Auction | 10:00, 25 March 2026 | Lot 63

Stuart House, 35 Goodwins Road, King's Lynn, Norfolk PE30 5QX

*Guide | £1,000,000 - £1,200,000 (plus fees)

  • Residential Development
  • 21 Bedrooms
  • Tenure: Freehold

Call the team on 01553 777 773 for more information

Auction Date

Wed 25/03/2026

Auction Time

10:00

Auction Venue

Livestream Auction

A rare opportunity to purchase this former hotel with planning permission for change of use to eighteen assisted living units, one staff flat, consultation room and indoor community area

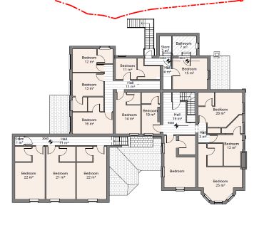
This popular former hotel ceased trading in August 2025 and sits on grounds of approximately 0.43 acres (stms) and is located near to The Walks in Kings Lynn. The hotel comprises eighteen en-suite bedrooms, reception area, lounge, restaurant, bar, office, meeting room and kitchen. There is also a detached non-standard bungalow with three bedrooms, bathroom and kitchen. Outside there are garden areas and ample parking. The hotel currently has planning permission for change of use from Class C1 to Class C3 for the repurposing of the current site and its existing structures achieving a total of eighteen assisted living units, one staff flat, consultation room and indoor community area. Further information can be found on Kings Lynn and West Norfolk local planning with Ref No.24/01092/FM. The hotel is ideally located near to The Walks in Kings Lynn, close to the town centre with its range of shopping facilities and amenities and mainline railway station with routes to London Kings Cross. Please note all fixtures and fittings have been removed from the property.

Tenure

Freehold

Currrent Accommodation

Eighteen en-suite bedrooms, reception area, lounge, restaurant, bar, office, meeting room and kitchen

Detached Bungalow (Non Standard Construction)

Three bedrooms, bathroom, kitchen

Outside

Garden areas and ample parking.

Business Rates

According to the Valuation Office website the Hotel and Premises has a current rateable value of £17,000 with effect from 1 April 2026.

Energy Efficiency Rating (EPC)

Current Rating D

Services

Interested parties are requested to make their own enquiries to the relevant authorities as to the availability of services.

Local Authority

Kings Lynn and West Norfolk Borough Council

Solicitors

Stanton Partners, Ref: Claire Stanton, Tel: 0191 427 0770

Important Notice to Prospective Buyers:

We draw your attention to the Special Conditions of Sale within the Legal Pack, referring to other charges in addition to the purchase price which may become payable. Such costs may include Search Fees, reimbursement of Sellers costs and Legal Fees, and Transfer Fees amongst others.

Additional Fees

Buyer's Premium - £1200 inc VAT payable on exchange of contracts.

Administration Charge - £1200 inc VAT payable on exchange of contracts.

Disbursements - Please see the legal pack for any disbursements listed that may become payable by the purchaser on completion.

View Larger Map

Disclaimer: The map preview provided above is for general guidance only and may not accurately reflect the exact location or surrounding buildings. Prospective buyers and interested parties are strongly advised to independently verify the precise location and surroundings before bidding.