For Sale By Auction | 10:00, 25 March 2026 | Lot 118

Waterval House, 10 Nene Quay, Wisbech, Cambridgeshire PE13 1AQ

Sold £136,000

  • Block of Apartments
  • Tenure: Freehold

Call the team on 01553 777 773 for more information

Auction Date

Wed 25/03/2026

Auction Time

10:00

Auction Venue

Livestream Auction

An investment opportunity to purchase a block of three flats, all tenanted, currently producing £19,260 pa

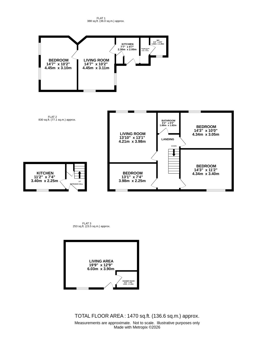
This block of three flats located in Wisbech town centre, are all currently tenanted producing £1605 pcm (£19,260 pa). The flats each have their own entrance, with Flat 1 (£750 pcm) on the first floor, accessed to the rear comprising kitchen, lounge, three bedrooms and bathroom. Flat 2 (£480 pcm) is also accessed to the rear and comprises lounge, one bedroom, kitchen, shower area and WC. Flat 3 (£375 pcm) is accessed at the front of the property with an open plan lounge/ kitchen/ bedroom and shower room. Outside there is also a courtyard garden to rear.

Tenure

Freehold

Flat 1

Kitchen, lounge, three bedrooms and bathroom

Flat 2

Lounge, one bedroom, kitchen, shower area and WC

Flat 3

Open plan lounge/ kitchen/ bedroom, shower room

Outside

Courtyard garden to rear

Council Tax Band

A

Energy Efficiency Rating (EPC)

Current Rating C, D & D

Services

Interested parties are requested to make their own enquiries to the relevant authorities as to the availability of services.

Local Authority

Fenland District Council

Solicitors

Womble Bond Dickinson (UK) LLP, Ref: Aaron McPherson, Tel: 01752 67 7963

Important Notice to Prospective Buyers:

We draw your attention to the Special Conditions of Sale within the Legal Pack, referring to other charges in addition to the purchase price which may become payable. Such costs may include Search Fees, reimbursement of Sellers costs and Legal Fees, and Transfer Fees amongst others.

Additional Fees

Buyer's Premium - £1200 inc VAT payable on exchange of contracts.

Administration Charge - £1200 inc VAT payable on exchange of contracts.

Disbursements - Please see the legal pack for any disbursements listed that may become payable by the purchaser on completion.

View Larger Map

Disclaimer: The map preview provided above is for general guidance only and may not accurately reflect the exact location or surrounding buildings. Prospective buyers and interested parties are strongly advised to independently verify the precise location and surroundings before bidding.