For Sale By Auction | 10:00, 25 March 2026 | Lot 108

105A Churchman House, Portman Road, Ipswich, Suffolk IP1 2BN

*Guide | £110,000 (plus fees)

  • Flat
  • 2 Bedrooms
  • Tenure: Leasehold. 125 years from January 2000

Call the team on 01473 558 888 for more information

Auction Date

Wed 25/03/2026

Auction Time

10:00

Auction Venue

Livestream Auction

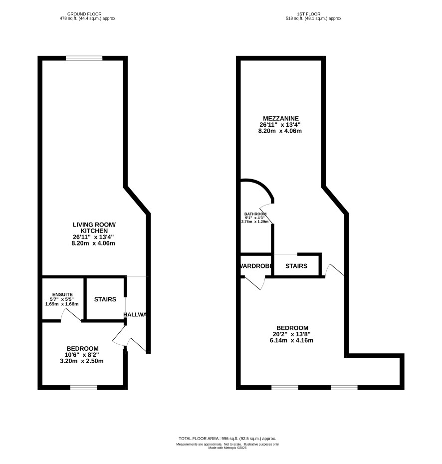
A modern duplex apartment with an established tenant

Situated close to the town centre and station immediately behind the football ground is this industrial style duplex apartment. The property offers 2 bedroom, 2 bathroom accommodation and has been let to the same tenant since September 2020 at a current rent of £1,100 per calendar month. To the rear is a secure allocated parking space and this Lot represents an excellent investment opportunity.

Tenure

Leasehold. 125 years from January 2000

Energy Efficiency Rating (EPC)

Current Rating C

Services

Interested parties are requested to make their own enquiries to the relevant authorities as to the availability of services.

Local Authority

Ipswich Borough Council

Solicitors

Womble Bond Dickinson (UK) LLP, Ref: Aaron McPherson, Tel: 01752 67 7963

Important Notice to Prospective Buyers:

We draw your attention to the Special Conditions of Sale within the Legal Pack, referring to other charges in addition to the purchase price which may become payable. Such costs may include Search Fees, reimbursement of Sellers costs and Legal Fees, and Transfer Fees amongst others.

Additional Fees

Buyer's Premium - £1200 inc VAT payable on exchange of contracts.

Administration Charge - £1200 inc VAT payable on exchange of contracts.

Disbursements - Please see the legal pack for any disbursements listed that may become payable by the purchaser on completion.

View Larger Map

Disclaimer: The map preview provided above is for general guidance only and may not accurately reflect the exact location or surrounding buildings. Prospective buyers and interested parties are strongly advised to independently verify the precise location and surroundings before bidding.