For Sale By Auction | 10:00, 25 March 2026 | Lot 28

53 Buttermarket, Ipswich, Suffolk IP1 1BJ

*Guide | £180,000 - £220,000 (plus fees)

  • Shop
  • Tenure: Freehold

Call the team on 01473 558 888 for more information

Auction Date

Wed 25/03/2026

Auction Time

10:00

Auction Venue

Livestream Auction

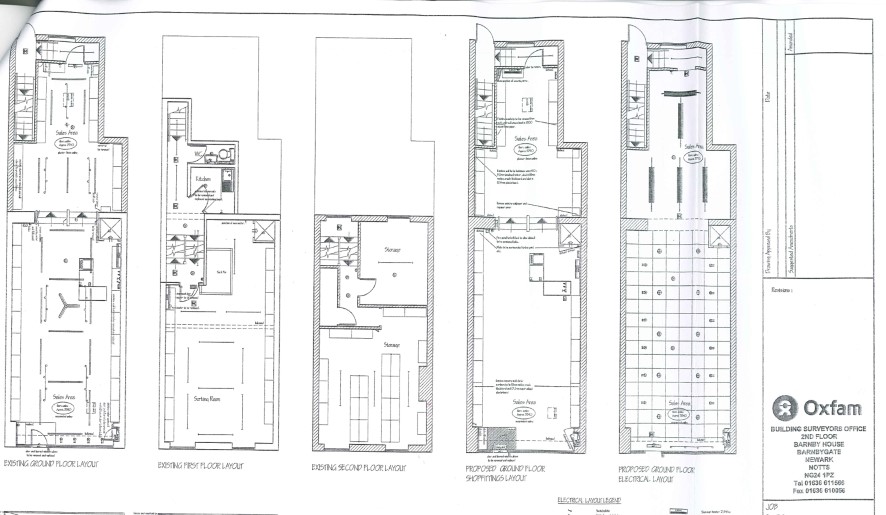
A prominent town centre commercial investment

Situated along the busy Buttermarket in Ipswich town centre is this 3 storey (plus basement) retail premises extending to approximately 2,200 sq ft overall. The property is let to Oxfam on a 10 year lease from June 2010 and is now holding over under the 1954 act at an annual rent of £25,000. With a gross annual yield equating to nearly 14% based on the low end of the Guide Price there's no doubt this is an excellent investment opportunity.

Tenure

Freehold

Energy Efficiency Rating (EPC)

Current Rating C

Services

Interested parties are requested to make their own enquiries to the relevant authorities as to the availability of services.

Local Authority

Ipswich Borough Council

Solicitors

William Sturges LLP, Ref: Louis Seitler

Important Notice to Prospective Buyers:

We draw your attention to the Special Conditions of Sale within the Legal Pack, referring to other charges in addition to the purchase price which may become payable. Such costs may include Search Fees, reimbursement of Sellers costs and Legal Fees, and Transfer Fees amongst others.

Additional Fees

Buyer's Premium - £1500 inc VAT payable on exchange of contracts.

Administration Charge - £1200 inc VAT payable on exchange of contracts.

Disbursements - Please see the legal pack for any disbursements listed that may become payable by the purchaser on completion.

View Larger Map

Disclaimer: The map preview provided above is for general guidance only and may not accurately reflect the exact location or surrounding buildings. Prospective buyers and interested parties are strongly advised to independently verify the precise location and surroundings before bidding.