For Sale By Auction | 10:00, 25 March 2026 | Lot 29

2 Barrack Lane, Ipswich, Suffolk IP1 3NQ

*Guide | £50,000 (plus fees)

  • Flat
  • 1 Bedroom
  • Tenure: Leasehold. 125 years from 1 June 1999

Call the team on 01473 558 888 for more information

Auction Date

Wed 25/03/2026

Auction Time

10:00

Auction Venue

Livestream Auction

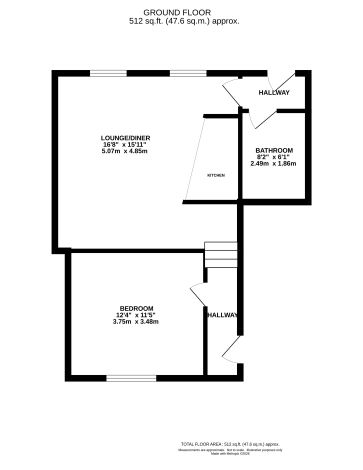
One bedroom ground floor flat with parking in the centre of Ipswich.

A one bedroom ground floor apartment situated within easy walking distance to the town centre. The property comprises entrance hall, lounge/diner with open plan kitchen, double bedroom and bathroom. The property benefits from gas central heating, parking space and cellar area. Ipswich town centre offers a wide range of shops, restaurants, cafés, and leisure facilities, along with cultural attractions and a mainline train station providing direct services to London Liverpool Street.

Tenure

Leasehold. 125 years from 1 June 1999

Energy Efficiency Rating (EPC)

Current Rating C

Services

Interested parties are requested to make their own enquiries to the relevant authorities as to the availability of services.

Local Authority

Ipswich Borough Council

Solicitors

Birketts (Ipswich), Ref: Rachel Cullum, Tel: 01473 406278

Important Notice to Prospective Buyers:

We draw your attention to the Special Conditions of Sale within the Legal Pack, referring to other charges in addition to the purchase price which may become payable. Such costs may include Search Fees, reimbursement of Sellers costs and Legal Fees, and Transfer Fees amongst others.

Additional Fees

Buyer's Premium - £1200 inc VAT payable on exchange of contracts.

Administration Charge - £1200 inc VAT payable on exchange of contracts.

Disbursements - Please see the legal pack for any disbursements listed that may become payable by the purchaser on completion.

View Larger Map

Disclaimer: The map preview provided above is for general guidance only and may not accurately reflect the exact location or surrounding buildings. Prospective buyers and interested parties are strongly advised to independently verify the precise location and surroundings before bidding.