For Sale By Auction | 10:00, 07 May 2026 | Lot 46

53 Sharman Avenue, Watton, Thetford, Norfolk IP25 6EG

Sold After

  • Detached Bungalow
  • 3 Bedrooms
  • Tenure: Freehold

Call the team on 01603 505 100 for more information

Auction Date

Thu 07/05/2026

Auction Time

10:00

Auction Venue

Livestream Auction

Three bedroom detached bungalow with garage and off road parking requiring remedial work

Of interest to cash buyers is this three bedroom detached bungalow extending to around 78 sq/m. It is double glazed, has gas central heating and occupies a 0.18 acre plot. It requires remedial work and modernisation to realise its full potential. The good epc C rating making it ideal as a buy to let investment or for owner occupation. The property is located at the end of a cul de sac backing onto open farmland and next to a sports field. On instruction of an executor.

Tenure

Freehold

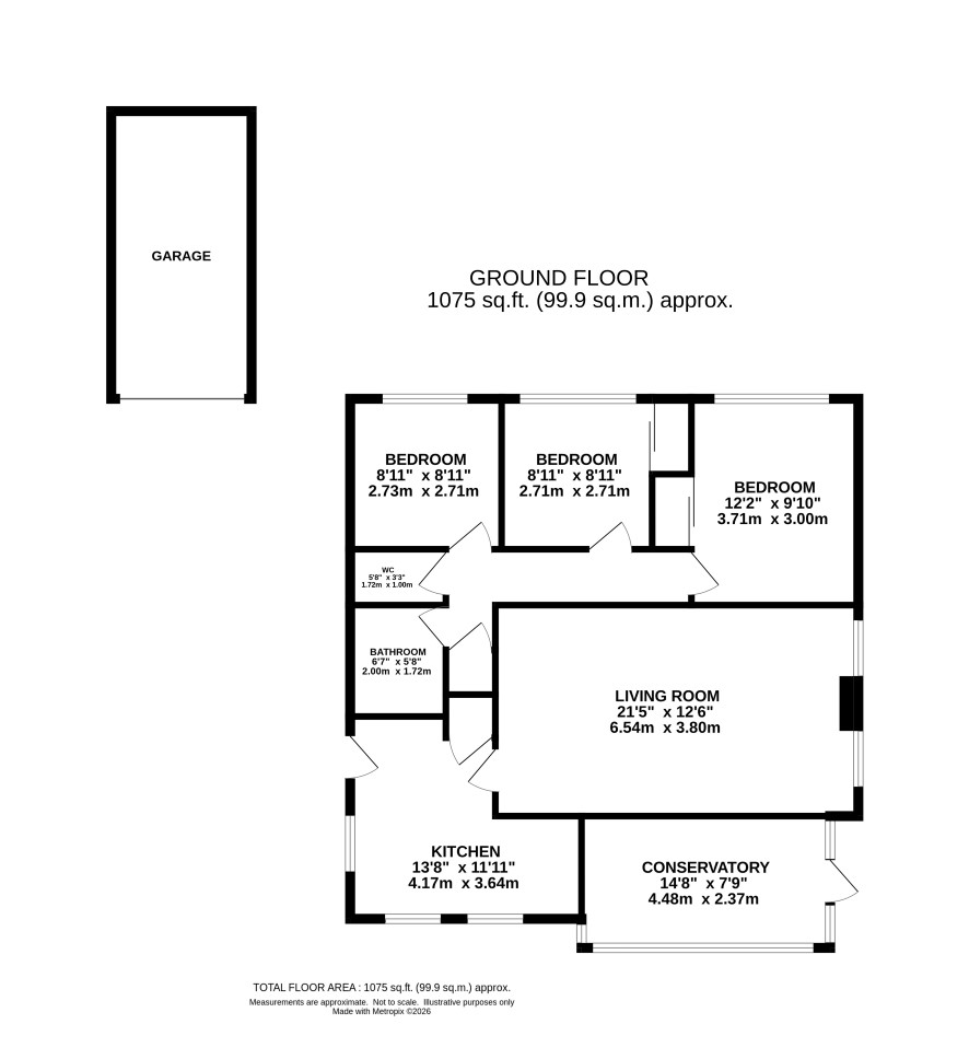
Ground floor

Kitchen, bathroom, wc, three bedrooms, living room, conservatory

Outside

Front and rear garden, off road parking, garage

Note

Interested parties are advised to read the structural report, asbestos report and quote to remove asbestos. These documents will be in the legal pack on our website.

Viewings

Open viewings are arranged and the next are on Thursday 14 May. Please call the Norwich office to arrange the next appointment.

Energy Efficiency Rating (EPC)

Current Rating C

Services

Interested parties are requested to make their own enquiries to the relevant authorities as to the availability of services.

Local Authority

Breckland Council

Solicitors

Fosters (Wymondham), Ref: Sue Zavanaiu, Tel: 01953 607724

Important Notice to Prospective Buyers:

We draw your attention to the Special Conditions of Sale within the Legal Pack, referring to other charges in addition to the purchase price which may become payable. Such costs may include Search Fees, reimbursement of Sellers costs and Legal Fees, and Transfer Fees amongst others.

Additional Fees

Administration Charge - £1200 inc VAT payable on exchange of contracts.

Disbursements - Please see the legal pack for any disbursements listed that may become payable by the purchaser on completion.

View Larger Map

Disclaimer: The map preview provided above is for general guidance only and may not accurately reflect the exact location or surrounding buildings. Prospective buyers and interested parties are strongly advised to independently verify the precise location and surroundings before bidding.