For Sale By Auction | 10:00, 07 May 2026 | Lot 111

107 Northgate Street, Great Yarmouth, Norfolk NR30 1BP

*Guide | £70,000 - £90,000 (plus fees)

  • Mixed Use
  • 2 Bedrooms
  • Tenure: Freehold

Call the team on 01603 505 100 for more information

Auction Date

Thu 07/05/2026

Auction Time

10:00

Auction Venue

Livestream Auction

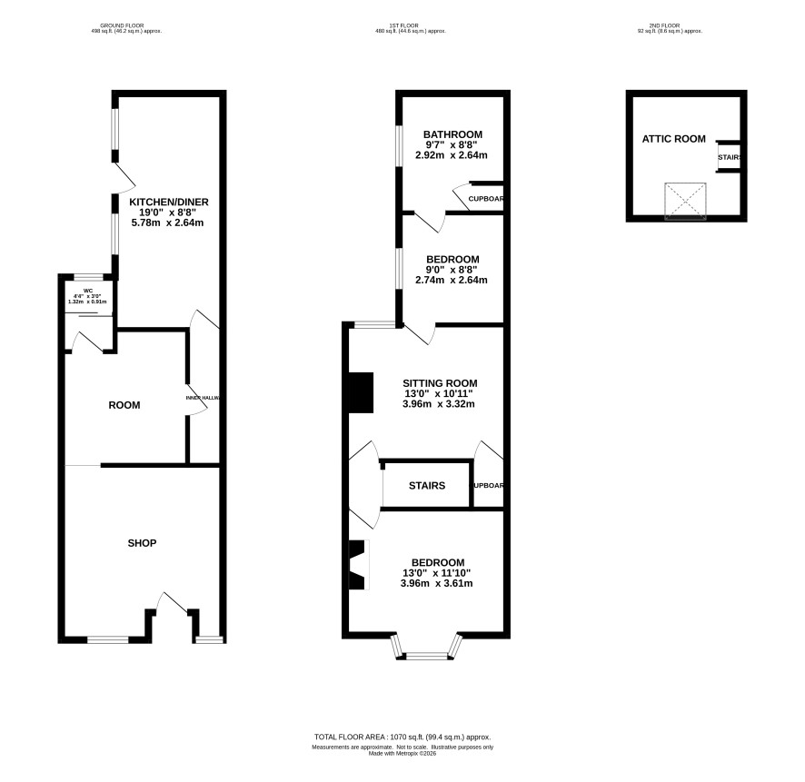
Mixed use property comprising a vacant shop and two bedroom maisonette

This freehold vacant mid terraced property comprises a vacant ground floor retail unit with two bedroom maisonette. The shop has large display window and was previously a dog grooming business. The maisonette is accessed from the rear or within the shop and has accommodation over the ground, first and second floor extending to around 62 sq/m. Both are in need of improvement and updating. First time to market in 30 years. According to the valuation office website the ground floor shop has an area of 17.9 sq/m and a rateable value of £2,950 with effect from 1st April 2026.

Tenure

Freehold

Shop

Ground floor: shop, room, wc

Maisonette

Ground floor: kitchen / dining room First floor: Two bedrooms, sitting room, bathroom Second floor: attic room

Council Tax Band

A

Energy Efficiency Rating (EPC)

Current Rating Shop: D Flat: D

Services

Interested parties are requested to make their own enquiries to the relevant authorities as to the availability of services.

Local Authority

Great Yarmouth Borough Council

Solicitors

Chamberlins (Great Yarmouth), Ref: Paul Ward, Tel: 01493 857621

Important Notice to Prospective Buyers:

We draw your attention to the Special Conditions of Sale within the Legal Pack, referring to other charges in addition to the purchase price which may become payable. Such costs may include Search Fees, reimbursement of Sellers costs and Legal Fees, and Transfer Fees amongst others.

Additional Fees

Administration Charge - £1200 inc VAT payable on exchange of contracts.

Disbursements - Please see the legal pack for any disbursements listed that may become payable by the purchaser on completion.

View Larger Map

Disclaimer: The map preview provided above is for general guidance only and may not accurately reflect the exact location or surrounding buildings. Prospective buyers and interested parties are strongly advised to independently verify the precise location and surroundings before bidding.