Sold Prior | Lot 38A

62A Osborne Road, Wisbech, Cambridgeshire PE13 3JW

Sold Prior

  • House (unspecified)
  • Tenure: Freehold

Call the team on 01733 889833 for more information

Auction Date

Thu 07/05/2026

Auction Time

10:00

Auction Venue

Livestream Auction

A site with Outline Planning Permission – Approx. 0.3 Acres (STS)

A development site extending to approximately 0.3 acres (STS) with outline planning permission granted under Fenland District Council reference F/YR21/1448/O for the erection of up to four dwellings, following the demolition of the existing dwelling.

Tenure

Freehold

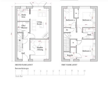
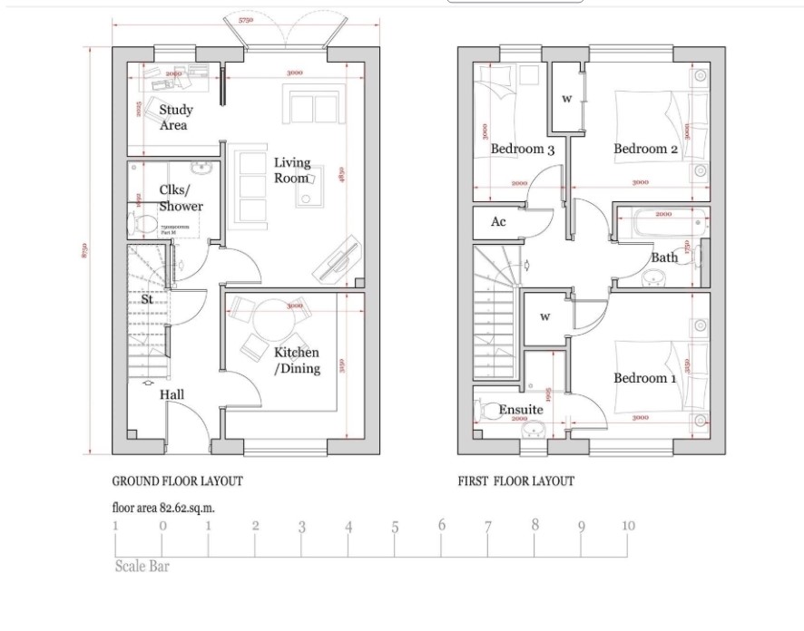
Proposed Accommodation for the 4 Dwellings:

Ground Floor: Entrace Hall, Kitchen/Dining room, Living room, Study area & Shower First Floor: Bedroom 1, Bedroom 2, Bedroom 3, Ensuite & Bathroom

Energy Efficiency Rating (EPC)

Current Rating N/A

Services

Interested parties are requested to make their own enquiries to the relevant authorities as to the availability of services.

Local Authority

Fenland District Council

Solicitors

Taylor Rose MW Conveyancing, Ref: Taylor Rose MW Conveyancing, Tel: 01733 972956

Important Notice to Prospective Buyers:

We draw your attention to the Special Conditions of Sale within the Legal Pack, referring to other charges in addition to the purchase price which may become payable. Such costs may include Search Fees, reimbursement of Sellers costs and Legal Fees, and Transfer Fees amongst others.

Additional Fees

Buyer's Premium - £1500 inc VAT payable on exchange of contracts.

Administration Charge - £1200 inc VAT payable on exchange of contracts.

Disbursements - Please see the legal pack for any disbursements listed that may become payable by the purchaser on completion.

View Larger Map

Disclaimer: The map preview provided above is for general guidance only and may not accurately reflect the exact location or surrounding buildings. Prospective buyers and interested parties are strongly advised to independently verify the precise location and surroundings before bidding.