For Sale By Auction | 1.00pm, 25 March 2026 | Lot TBC

Rose Cottage, Foston on the Wolds, East Yorkshire, YO25 8BJ

*Guide | £110,000 - £130,000 (plus fees)

  • Detached House
  • 2 Bedrooms
  • Tenure: Freehold with vacant possession upon completion.

Call the team on 0845 400 9900 for more information

Auction Date

Wed 25/03/2026

Auction Time

1.00pm

Auction Venue

Regional Online

A two-bedroom detached cottage with the benefit of full planning consent for a single-storey extension. Would make an IDEAL HOLIDAY HOME

Rose Cottage is an individual detached cottage that offers great potential for renovation and has full planning consent for an extension The cottage is currently modeest in size but it benefits from a modern kitchen fitted in 2021 and a bathroom fitted in 2019; however, the first-floor accommodation currently has restricted headroom, which interested parties may wish to try to alter. The planning consent offers an opportunity for anyone looking for a Holiday Home or a renovation project, with the option to extend to provide additional living accommodation if required. Full planning has been granted for the conversion of an existing adjoining outbuilding and the extension of the accommodation. The property is single-glazed and has oil-fired heating. The property did enjoy a much larger garden, but full planning has recently been approved for a single detached house on the garden, so it is being offered separately. The vendors would consider offers on the cottage with the garden plot.

Tenure

Freehold with vacant possession upon completion.

Location

Rose Cottage is located within the sought-after and unspoiled conservation Village of Foston-on-the-Wolds. The Village lies 6.5 miles To the east of the Market Town of Driffield, 13 miles from the east coast Town of Bridlington, and 16 miles to the northeast of Beverley. The City of Hull, with direct rail connections to London, is less than 40 minutes drive away. Foston is a picturesque and unspoiled Wolds village located in an excellent position for access to the surrounding Towns and Cities.

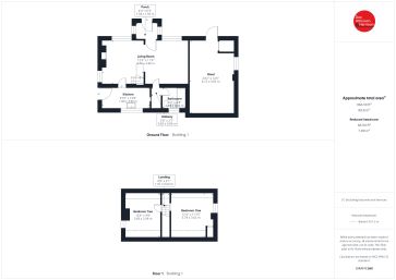
Accommodation

Ground Floor: Porch, living room with dining area, kitchen, lobby, bathroom with WC. First Floor: Landing, two double bedrooms.

Outside

Adjoining the property to the rear is a large domestic shed that houses the boiler but also has full planning approval for demolition and extension to provide enlarged living accommodation, including a bedroom and en-suite bathroom. A private drive provides off-street parking.

Planning Consent

Full planning consent was granted on the 21st October 2025 under Application No: 25/02426/PLF for the Erection of single storey extension to side and rear following demolition of existing; removal of existing render and replace with new, installation of Air Source Heat Pump and Charging Point and erection of detached garden store/kitchen to rear of garden following removal of existing steel building. A copy of the notice of decision and accompanying drawings can be found on the East Riding of Yorkshire Council website using the planning public access page and entering the application number in the search

Services

Mains water and electricity are connected. Drainage is to a septic tank. None of the services have been tested.

Viewing

Strictly by appointment with the sole agents.

Council Tax

The property is listed as being in Council Tax Band B.

Method of Sale

The property will be offered for sale by online auction with bidding commencing at 12 noon on Monday, 23rd March 2026 and closing on Wednesday, 25th March 2026 at 1.00 pm. For further legal information relating to this lot, please log on to auctionhouse.co.uk/hullandeastyorkshire.

Conditions of Sale

The property will be sold subject to conditions of sale, copies of which will be available for inspection at the auctioneer’s offices, with the solicitors and online at auctionhouse.co.uk/hullandeastyorkshire before the date of the auction.

Energy Efficiency Rating (EPC)

Current Rating G17

Services

Interested parties are invited to make their own enquiries to the relevant authorities as to the availability of the services.

Local Authority

East Riding of Yorkshire Council

Solicitors

Best Solicitors, 48 West Street, Sheffield, South Yorkshire, S1 4EX, Ref: Elizabeth Harris, Tel: 01143 222 858

Important Notice to Prospective Buyers:

We draw your attention to the Special Conditions of Sale within the Legal Pack, referring to other charges in addition to the purchase price which may become payable. Such costs may include Search Fees, reimbursement of Sellers costs and Legal Fees, and Transfer Fees amongst others.

Additional Fees

Buyer's Premium - The purchaser will be required to pay a buyer’s premium of £900 (£750 + VAT) in addition to the purchase price of the property.

Administration Charge - The purchaser will be required to pay an administration charge of 0.3% subject to a minimum of £900 (£750 plus VAT) in addition to the purchase price of the property.

Disbursements - Please refer to the legal pack for any disbursements listed that may become payable by the purchaser upon completion.

Please see the legal pack for any disbursements listed that may become payable by the purchaser on completion.

View Larger Map

Disclaimer: The map preview provided above is for general guidance only and may not accurately reflect the exact location or surrounding buildings. Prospective buyers and interested parties are strongly advised to independently verify the precise location and surroundings before bidding.