Postponed | Lot 8

Field House Surgery, Victoria Road, Bridlington, East Yorkshire, YO15 2AT

Postponed

  • Residential Development
  • Tenure: Freehold with vacant possession.

Call the team on 0845 400 9900 for more information

Auction Date

Wed 25/03/2026

Auction Time

1.00pm

Auction Venue

Regional Online

A fantastic redevelopment opportunity located close to the centre of this East Yorkshire Coast resort town.

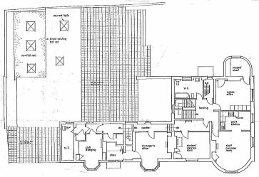
POSTPONED - The property will be re-entered into our 27th May auction. The property is a substantial Grade II Listed, link-detached building formerly used as a doctor's surgery. Situated on an L-shaped site of approximately 0.85 acres, it has a total area of approximately 673 square meters (7,244 square feet) and includes multiple treatment rooms, offices, and staff facilities. There is a large car parking area at the front of the site. There is also a separate detached single-storey building that offers further redevelopment potential. The property was previously let at an annual rent of £64,500 but has since become vacant and has also been vandalised. The site offers significant redevelopment potential, subject to planning approval.

Tenure

Freehold with vacant possession.

Main Building

Ground Floor Waiting Area, Pharmacy, Various Consulting Rooms, Offices (369.01sqm / 3,972sqft) First Floor Consulting Rooms and Offices (107.33sqm / 1,155sqft)

Watson Building

Ground Floor Reception, Three Consulting Rooms and WC (67.02sqm / 721sqft)

Total Net Internal Area

543.36sqm / 5,848sqft

Services

The property is believed to be connected to mains gas, electricity, water and drainage. None of the services or installations have been tested.

Viewing

Strictly by appointment with the Auctioneers on 0845 400 9900 or the joint agents PPH Commercial on 01482 648888.

Business Rates

Business Rates are payable to East Riding of Yorkshire Council. The premises have a current rateable value of £26,000, reducing to £23,500 on 1st April 2026.

Joint Agents

PPH Commercial, First Floor Pavilion House, Hesslewood Office Park, Ferriby Road, Hessle HU13 0LG. FTAO Ben Cooper 01482 648888

Method of Sale

The property will be offered for sale by online auction with bidding commencing at 12 noon on Monday, 23rd March 2026 and closing on Wednesday, 25th March 2026 at 1.00 pm. For further legal information relating to this lot, please log on to auctionhouse.co.uk/hullandeastyorkshire.

Conditions of Sale

The property will be sold subject to conditions of sale, copies of which will be available for inspection at the auctioneer’s offices, with the solicitors and on-line at auctionhouse.co.uk/hullandeastyorkshire prior to the date of the auction.

Energy Efficiency Rating (EPC)

Current Rating C74

Services

Interested parties are invited to make their own enquiries to the relevant authorities as to the availability of the services.

Local Authority

East Riding of Yorkshire Council

Solicitors

Schofield Sweeney, Centura, Wellington Street, Leeds, West Yorkshire, LS1 2AY, Ref: Tom Jackson, Tel: 01138 494 000

Important Notice to Prospective Buyers:

We draw your attention to the Special Conditions of Sale within the Legal Pack, referring to other charges in addition to the purchase price which may become payable. Such costs may include Search Fees, reimbursement of Sellers costs and Legal Fees, and Transfer Fees amongst others.

Additional Fees

Buyer's Premium - The purchaser will be required to pay a buyer’s premium of £900 (£750 + VAT) in addition to the purchase price of the property.

Administration Charge - The purchaser will be required to pay an administration charge of 0.3% subject to a minimum of £900 (£750 plus VAT) in addition to the purchase price of the property.

Disbursements - Please see the legal pack for any disbursements listed that may become payable by the purchaser on completion.

Please see the legal pack for any disbursements listed that may become payable by the purchaser on completion.

View Larger Map

Disclaimer: The map preview provided above is for general guidance only and may not accurately reflect the exact location or surrounding buildings. Prospective buyers and interested parties are strongly advised to independently verify the precise location and surroundings before bidding.