For Sale By Auction | 09:30, 28 May 2025 | Lot 42

65 Eastcote Avenue, Greenford, Middlesex, UB6 0NQ

Sold £466,000

  • Terraced House
  • 3 Bedrooms
  • Tenure: Freehold

Call the team on 020 7625 9007 for more information

Auction Date

Wed 28/05/2025

Auction Time

09:30

Auction Venue

Live Stream

Viewing Times:

Wed 14 May

14:30-15:00

Fri 16 May

14:30-15:00

Sat 17 May

12:45-13:15

Tue 20 May

14:30-15:00

Thu 22 May

14:30-15:00

Mon 26 May

14:30-15:00

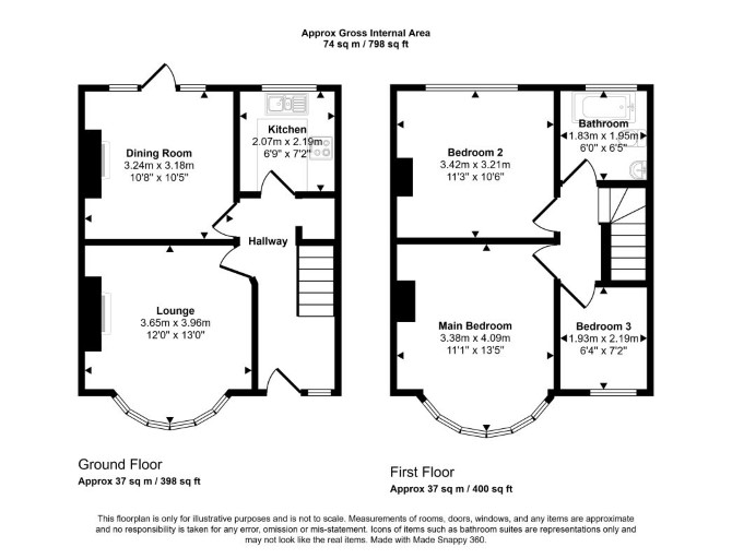
A Vacant Three Bedroom Mid Terrace House, Potential for a Loft and Rear Extension (Subject to Obtaining all Relevant Consents)

The property comprises a three bedroom mid terrace house arranging over ground and first floors.

Tenure

Freehold

Location

The property is situated on a residential road close to local shops and amenities. The open spaces of Barham Park are within easy reach. Transport links are provided by Sudbury Town underground station (Piccadilly line) and Sudbury & Harrow Road rail station.

Accommodation

Ground Floor Two Reception Rooms Kitchen First Floor Three Bedrooms Bathroom

Exterior

The property benefits from both front and rear gardens.

Energy Efficiency Rating (EPC)

Current Rating D

Services

Interested parties are requested to make their own enquiries to the relevant authorities as to the availability of services.

Important Notice to Prospective Buyers:

We draw your attention to the Special Conditions of Sale within the Legal Pack, referring to other charges in addition to the purchase price which may become payable. Such costs may include Search Fees, reimbursement of Sellers costs and Legal Fees, and Transfer Fees amongst others.

Additional Fees

Administration Charge - Purchasers will be required to pay an administration fee of £1,800 inc VAT

Disbursements - Please see the legal pack for any disbursements listed that may become payable by the purchaser on completion.

View Larger Map

Disclaimer: The map preview provided above is for general guidance only and may not accurately reflect the exact location or surrounding buildings. Prospective buyers and interested parties are strongly advised to independently verify the precise location and surroundings before bidding.