For Sale By Auction | 09:30, 28 May 2025 | Lot 24

77 Mangold Way, Erith, Kent, DA18 4DA

Sold After

  • End of Terrace House
  • 3 Bedrooms
  • Tenure: Freehold

Call the team on 020 7625 9007 for more information

Auction Date

Wed 28/05/2025

Auction Time

09:30

Auction Venue

Live Stream

Viewing Times:

Thu 15 May

11:00-11:30

Mon 19 May

11:00-11:30

Wed 21 May

11:00-11:30

Fri 23 May

11:00-11:30

Sat 24 May

12:00-12:30

Tue 27 May

11:00-11:30

A Vacant Three Bedroom End of Terrace House

The property comprises a three bedroom end of terrace house arranging over ground and two upper floors.

Tenure

Freehold

Location

The property is situated on a residential road close to local shops and amenities. The open spaces of Southmere Park are within easy reach. Transport links are provided by Abbey Wood rail station.

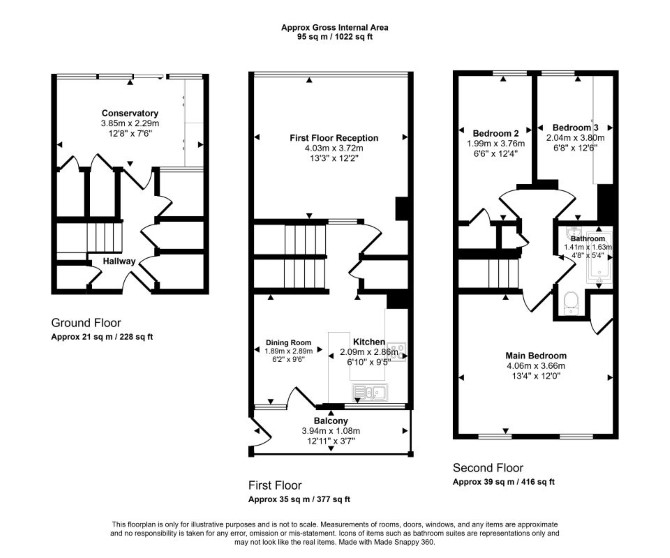
Accommodation

Ground Floor Conservatory Utility Room Storage First Floor Reception Room Kitchen/Diner Second Floor Three Bedrooms Bathroom

Exterior

The property benefits from a rear garden and a balcony.

Energy Efficiency Rating (EPC)

Current Rating D

Services

Interested parties are requested to make their own enquiries to the relevant authorities as to the availability of services.

Important Notice to Prospective Buyers:

We draw your attention to the Special Conditions of Sale within the Legal Pack, referring to other charges in addition to the purchase price which may become payable. Such costs may include Search Fees, reimbursement of Sellers costs and Legal Fees, and Transfer Fees amongst others.

Additional Fees

Administration Charge - Purchasers will be required to pay an administration fee of £1,800 inc VAT

Disbursements - Please see the legal pack for any disbursements listed that may become payable by the purchaser on completion.

View Larger Map

Disclaimer: The map preview provided above is for general guidance only and may not accurately reflect the exact location or surrounding buildings. Prospective buyers and interested parties are strongly advised to independently verify the precise location and surroundings before bidding.