Withdrawn | Lot 89

11 Grove Avenue, Beeston, Nottingham, Nottinghamshire, NG9 4ED

Withdrawn

  • Detached Bungalow
  • 2 Bedrooms
  • Tenure: Freehold

Call the team on 020 7625 9007 for more information

Auction Date

Wed 28/05/2025

Auction Time

09:30

Auction Venue

Live Stream

Viewing Times:

Tue 20 May

12:30-13:00

Sun 25 May

10:00-10:30

Tue 27 May

12:00-12:30

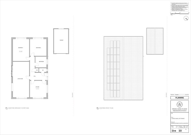
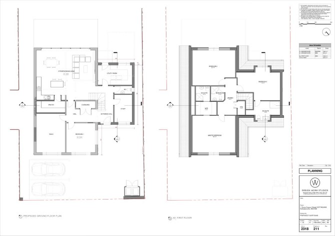
A Vacant Detached Bungalow with Planning to Create a 2,800 sq ft Four-Bedroom Chalet Bungalow.

The property comprises a detached two bedroom bungalow with full planning permission granted to extend and convert into a spacious four-bedroom chalet bungalow arranged over the ground floor.

Tenure

Freehold

Location

The property is situated on a residential road close to local shops and amenities. The open spaces of Dovecote Lane Recreation Ground Park are within easy reach. Transport links are provided by Beeston rail station.

Accommodation

Ground Floor Reception Room Kitchen Two Bedrooms Bathroom Separate WC

Planning

Broxtowe Borough Council granted the following planning permission (ref: 24/00248/FUL) on 19th November 2024: 'Raise height of roof and construct two storey side extension with dormers to front and rear to facilitate formation of living accommodation to first floor'.

Proposed Accommodation

Ground Floor Reception Room with Open-Plan Kitchen Snug Bedroom Study Utility Room WC First Floor Three Bedrooms (Two with En-Suites) Bathroom

Proposed Accommodation Exterior

The property will benefit from off-street parking and a rear garden.

Energy Efficiency Rating (EPC)

Current Rating B

Services

Interested parties are requested to make their own enquiries to the relevant authorities as to the availability of services.

Important Notice to Prospective Buyers:

We draw your attention to the Special Conditions of Sale within the Legal Pack, referring to other charges in addition to the purchase price which may become payable. Such costs may include Search Fees, reimbursement of Sellers costs and Legal Fees, and Transfer Fees amongst others.

Additional Fees

Administration Charge - Purchasers will be required to pay an administration fee of £1,800 inc VAT

Disbursements - Please see the legal pack for any disbursements listed that may become payable by the purchaser on completion.

View Larger Map

Disclaimer: The map preview provided above is for general guidance only and may not accurately reflect the exact location or surrounding buildings. Prospective buyers and interested parties are strongly advised to independently verify the precise location and surroundings before bidding.