Sold Prior | Lot 228

181 Brighton Road, South Croydon, Surrey, CR2 6EG

Sold Prior

  • Mixed Use
  • 4 Bedrooms
  • Tenure: Freehold

Call the team on 020 7625 9007 for more information

Auction Date

Thu 29/05/2025

Auction Time

10:00

Auction Venue

Live Stream

A Mid Terrace Building Arranged to Provide a Lower Ground and Ground Floor Retail Unit (B1/D1 use), a One Bedroom Flat and Two Flats on the Upper Parts (1 x One Bedroom, 1 x Two Bedroom) Part Let Producing £43,200 Per Annum. The Property has an Estimated Rental Value (ERV) of £68,200.

The property comprises a mid terrace building arranged to provide a lower ground and ground floor retail unit, a ground floor flat and two flats on the upper parts.

Tenure

Freehold

Location

The property is situated on a mixed use road close to local shops and amenities. The open spaces of Haling Grove Park are within easy reach. Transport links are provided by South Croydon rail station.

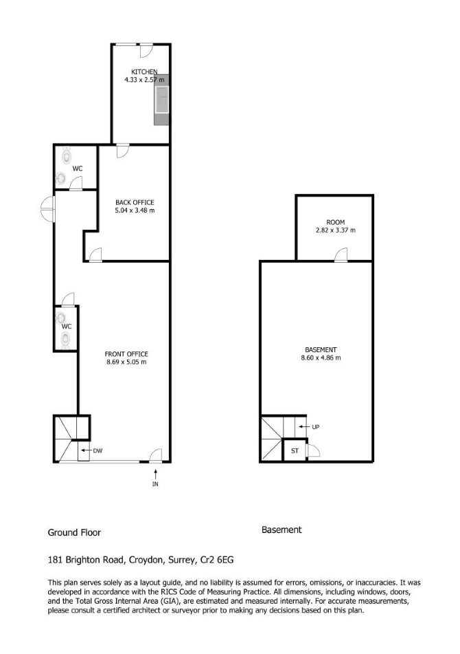
Accommodation

Lower Ground Floor Retail Unit Ground Floor Retail Unit One Bedroom Flat First Floor Two Bedroom Flat Second Floor One Bedroom Flat

Exterior

The property benefits from a rear yard. The retail unit benefits from off street parking.

Tenancy

The property is subject to a individual tenancies at a rent of £43,200 per annum. We have been advised that the ground floor retail unit was previously let for £25,000 per annum.

Services

Interested parties are requested to make their own enquiries to the relevant authorities as to the availability of services.

Important Notice to Prospective Buyers:

We draw your attention to the Special Conditions of Sale within the Legal Pack, referring to other charges in addition to the purchase price which may become payable. Such costs may include Search Fees, reimbursement of Sellers costs and Legal Fees, and Transfer Fees amongst others.

Additional Fees

Administration Charge - Purchasers will be required to pay an administration fee of £1,800 inc VAT

Disbursements - Please see the legal pack for any disbursements listed that may become payable by the purchaser on completion.

View Larger Map

Disclaimer: The map preview provided above is for general guidance only and may not accurately reflect the exact location or surrounding buildings. Prospective buyers and interested parties are strongly advised to independently verify the precise location and surroundings before bidding.