Sold Prior | Lot 96

243 The Water Gardens, Paddington, London, W2 2DG

Sold Prior

  • Flat
  • 2 Bedrooms
  • Tenure: Leasehold. The property is held on a 99 year lease from 25th December 1986 (thus approximately 60 years unexpired).

Call the team on 020 7625 9007 for more information

Auction Date

Wed 02/07/2025

Auction Time

09:30

Auction Venue

Live Stream

Viewing Times:

Fri 6 Jun

10:00-10:30

Thu 19 Jun

10:45-11:15

Mon 23 Jun

10:45-11:15

Wed 25 Jun

10:45-11:15

Fri 27 Jun

10:45-11:15

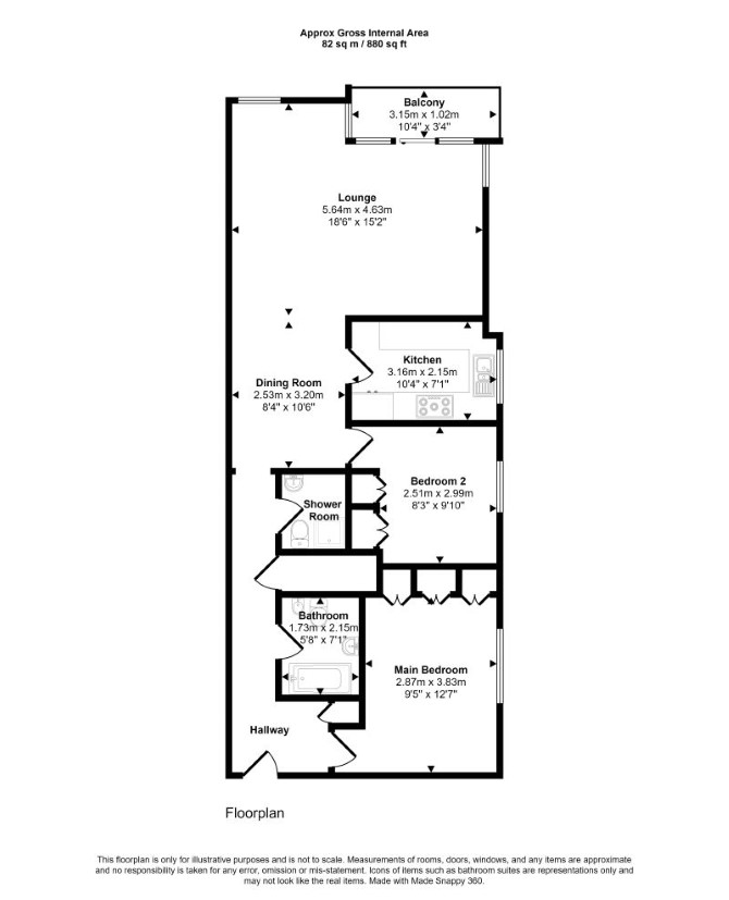
A Well Located Vacant Fourteenth Floor Two Bedroom Flat

The property comprises a well located fourteenth floor two bedroom flat situated within a purpose built block arranged over ground and fifteen upper floors.

Tenure

Leasehold. The property is held on a 99 year lease from 25th December 1986 (thus approximately 60 years unexpired).

Location

The property is in the highly sought after area of Paddington, close to local shops and amenities. The open spaces of Hyde Park are within easy reach. Transport links are provided by Edgware Road underground station (Bakerloo line) and Marylebone rail station.

Accommodation

Fourteenth Floor Reception Room/Dining Room Kitchen Two Bedrooms Two Bathrooms

Exterior

The property benefits from a private balcony and onsite porter.

Further Information

When purchasing a flat that has a short lease, it is important to understand that in addition to the purchase price, if you wish to extend the lease to 90+ years, you will need to pay a premium to the freeholder. This is done by way of serving a Section 42 notice to the freeholder requesting a lease extension with a suggested price for the extension. The freeholder has the right to refuse the offer and submit a counter notice with their suggested price. If you do not fully understand this process, please ask the auctioneers or a solicitor.

Energy Efficiency Rating (EPC)

Current Rating C

Services

Interested parties are requested to make their own enquiries to the relevant authorities as to the availability of services.

Important Notice to Prospective Buyers:

We draw your attention to the Special Conditions of Sale within the Legal Pack, referring to other charges in addition to the purchase price which may become payable. Such costs may include Search Fees, reimbursement of Sellers costs and Legal Fees, and Transfer Fees amongst others.

Additional Fees

Administration Charge - Purchasers will be required to pay an administration fee of £1,800 inc VAT

Disbursements - Please see the legal pack for any disbursements listed that may become payable by the purchaser on completion.

View Larger Map

Disclaimer: The map preview provided above is for general guidance only and may not accurately reflect the exact location or surrounding buildings. Prospective buyers and interested parties are strongly advised to independently verify the precise location and surroundings before bidding.