Call the team on 020 7625 9007 for more information
A vacant Ground Floor One Bedroom Flat
The property comprises a ground floor one bedroom flat situated within a purpose built block arranging over ground and two upper floors. The property requires a program of refurbishment.
Tenure
Leasehold. The property will be held on a new 990 year lease.
Location
The property is situated on a residential road close to local shops and amenities. The open spaces of Centenary Square are within easy reach. Transport links are provided by Bradford Interchange rail station.
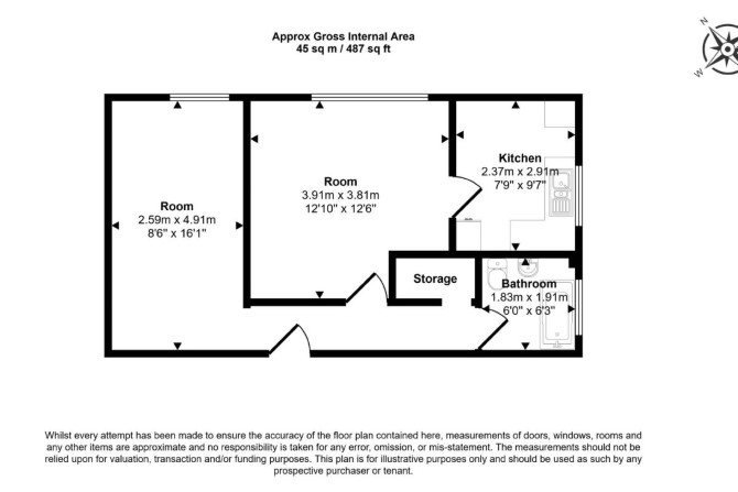
Accommodation
Ground Floor Reception Room Kitchen Bedroom Bathroom
The property has not been inspected by Auction House London. All information has been supplied by the vendor.
Energy Efficiency Rating (EPC)
Current Rating C
Services
Interested parties are requested to make their own enquiries to the relevant authorities as to the availability of services.
Important Notice to Prospective Buyers:
We draw your attention to the Special Conditions of Sale within the Legal Pack, referring to other charges in addition to the purchase price which may become payable. Such costs may include Search Fees, reimbursement of Sellers costs and Legal Fees, and Transfer Fees amongst others.
Additional Fees
Administration Charge - Purchasers will be required to pay an administration fee of £1,500 inc VAT
Disbursements - Please see the legal pack for any disbursements listed that may become payable by the purchaser on completion.
Disclaimer: The map preview provided above is for general guidance only and may not accurately reflect the exact location or surrounding buildings. Prospective buyers and interested parties are strongly advised to independently verify the precise location and surroundings before bidding.