For Sale By Auction | 09:30, 10 September 2025 | Lot 75

30 Woodhouse Road, Sheffield, South Yorkshire, S12 2AZ

Sold £94,000

  • Terraced House
  • 3 Bedrooms
  • Tenure: Freehold

Call the team on 020 7625 9007 for more information

Auction Date

Wed 10/09/2025

Auction Time

09:30

Auction Venue

Live Stream

Viewing Times:

Wed 27 Aug

10:00-10:30

Thu 28 Aug

10:00-10:30

Tue 2 Sep

10:00-10:30

Thu 4 Sep

10:00-10:30

Sat 6 Sep

10:00-10:30

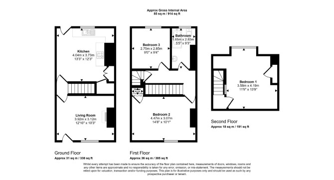
A Vacant Three Bedroom Mid Terrace House

The property comprises a three bedroom mid terrace house arranged over lower ground, ground and two upper floors.

Tenure

Freehold

Location

The property is situated on a residential road close to local shops and amenities. The open spaces of Richmond Park are within easy reach. Transport links are provided by Sheffield rail station and the A61.

Accommodation

Lower Ground Floor Basement Ground Floor Reception Room Kitchen First Floor Two Bedrooms Bathroom Second Floor Bedroom

Exterior

The property benefits from a rear yard.

Energy Efficiency Rating (EPC)

Current Rating D

Services

Interested parties are requested to make their own enquiries to the relevant authorities as to the availability of services.

Important Notice to Prospective Buyers:

We draw your attention to the Special Conditions of Sale within the Legal Pack, referring to other charges in addition to the purchase price which may become payable. Such costs may include Search Fees, reimbursement of Sellers costs and Legal Fees, and Transfer Fees amongst others.

Additional Fees

Administration Charge - Purchasers will be required to pay an administration fee of £1,500 inc VAT

Disbursements - Please see the legal pack for any disbursements listed that may become payable by the purchaser on completion.

View Larger Map

Disclaimer: The map preview provided above is for general guidance only and may not accurately reflect the exact location or surrounding buildings. Prospective buyers and interested parties are strongly advised to independently verify the precise location and surroundings before bidding.