For Sale By Auction | 09:30, 10 September 2025 | Lot 6

1 Leigh Drive, Romford, Essex, RM3 7YJ

Sold £330,000

  • End of Terrace House
  • 2 Bedrooms
  • Tenure: Freehold

Call the team on 020 7625 9007 for more information

Auction Date

Wed 10/09/2025

Auction Time

09:30

Auction Venue

Live Stream

Viewing Times:

Wed 27 Aug

10:00-10:30

Fri 29 Aug

10:00-10:30

Tue 2 Sep

10:00-10:30

Thu 4 Sep

10:00-10:30

Sat 6 Sep

10:00-10:30

Mon 8 Sep

10:00-10:30

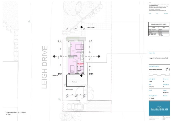
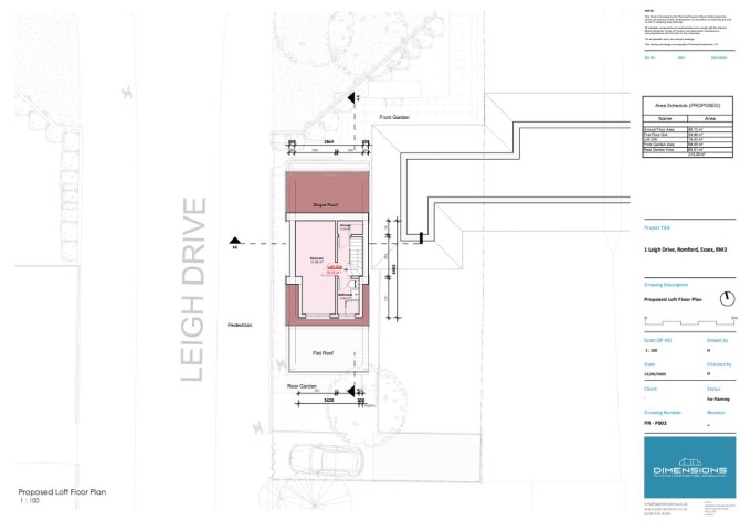
A Vacant Two Bedroom End of Terrace House Situated on a Plot of Land Measuring Approximately 255 sq m (2,744 sq ft)

The property comprises a two bedroom end of terrace house arranged over ground and first floors situated on a plot of land measuring approximately 255 sq m (2,744 sq ft). Plans have been drawn up for the erection of a three bedroom house to the side of the existing house. Drawings of the proposed plans are available for inspection upon request. Auction House London make no representations or warranties with regard to this scheme and/or the validity of the aforementioned plans. Buyers must rely on their own enquiries with regard to any development potential, permissions required and any previous planning history in respect of this site.

Tenure

Freehold

6 Week Completion Available or Earlier if Required

Location

The property is situated on a residential road close to local shops and amenities. The open spaces of Central Park are within easy reach. Transport links are provided by Romford underground (Elizabeth line), overground and rail stations.

Accommodation

Ground Floor Reception Room Kitchen First Floor Two Bedrooms Bathroom Separate WC

Exterior

The property benefits from side and rear gardens and a detached garage to the rear.

Energy Efficiency Rating (EPC)

Current Rating D

Services

Interested parties are requested to make their own enquiries to the relevant authorities as to the availability of services.

Important Notice to Prospective Buyers:

We draw your attention to the Special Conditions of Sale within the Legal Pack, referring to other charges in addition to the purchase price which may become payable. Such costs may include Search Fees, reimbursement of Sellers costs and Legal Fees, and Transfer Fees amongst others.

Additional Fees

Administration Charge - Purchasers will be required to pay an administration fee of £1,500 inc VAT

Disbursements - Please see the legal pack for any disbursements listed that may become payable by the purchaser on completion.

View Larger Map

Disclaimer: The map preview provided above is for general guidance only and may not accurately reflect the exact location or surrounding buildings. Prospective buyers and interested parties are strongly advised to independently verify the precise location and surroundings before bidding.