For Sale By Auction | 09:30, 10 September 2025 | Lot 22

7-11 Midland Road, Bedford, Bedfordshire, MK40 1PL

Sold £1,125,000

  • Retail Property (high street)

Call the team on 020 7625 9007 for more information

Auction Date

Wed 10/09/2025

Auction Time

09:30

Auction Venue

Live Stream

Viewing Times:

Tue 9 Sep

14:00-14:30

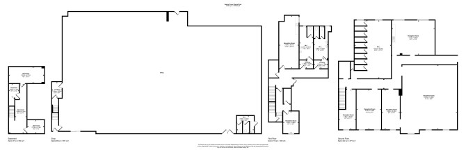
A Freehold Mid Terrace Building Measuring 17,225 sq ft and Arranged to Provide a Lower Ground and Ground Floor Commercial Unit with First and Second Floor Ancillary Space Fully Let to Iceland Foods Ltd Producing £175,000 Per Annum (Not Currently in Occuption). Plans have been Drawn up for the First and Second Floors to be Converted into Seventeen Flats. (25% Yield and £40 Per Sq Ft on the Guide Price).

The property comprises a mid terrace commercial building arranged over four floors. Plans have been drawn up to convert the upper parts into 17 flats. No planning application has been submitted for this scheme. Drawings of the proposed plans are available in the legal pack. AHL make no representations or warranties with regard to this scheme and/or the validity of the aforementioned plans. Buyers must rely on their own enquiries with regard to any development potential, permissions required and any previous planning history.

Let to Iceland Foods Ltd Until December 2026

Location

The property is situated within Bedford City Centre close to local shops and amenities. Nearby multiples include JD Sports, Boots and Halifax. The open spaces of Russell Park are within easy reach. Transport links are provided by Bedford rail station.

Accommodation

Lower Ground and Ground Floors Commercial Unit First and Second Floors Ancillary Space Total G.I.A Measuring Approximately 17,225 sq ft

Tenancy

The property is let to Iceland Foods Ltd until 19th December 2026 at a rent of £175,000 per annum (not currently in occupation).

The legal pack includes a substantial schedule of dilapidations report.

VAT

VAT is applicable

Energy Efficiency Rating (EPC)

Current Rating C

Services

Interested parties are requested to make their own enquiries to the relevant authorities as to the availability of services.

Important Notice to Prospective Buyers:

We draw your attention to the Special Conditions of Sale within the Legal Pack, referring to other charges in addition to the purchase price which may become payable. Such costs may include Search Fees, reimbursement of Sellers costs and Legal Fees, and Transfer Fees amongst others.

Additional Fees

Administration Charge - Purchasers will be required to pay an administration fee of £1,500 inc VAT

Disbursements - Please see the legal pack for any disbursements listed that may become payable by the purchaser on completion.

View Larger Map

Disclaimer: The map preview provided above is for general guidance only and may not accurately reflect the exact location or surrounding buildings. Prospective buyers and interested parties are strongly advised to independently verify the precise location and surroundings before bidding.